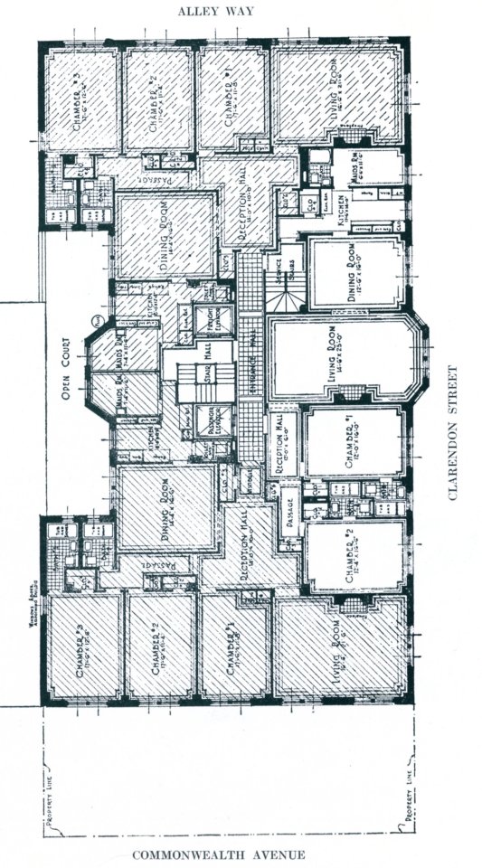
Comm 090 – Floor Plan ca 1928 – Boardman – Cropped ← Previous Floor plan of 90 Commonwealth ca. 1928, with three apartment per floor; rental brochure from T. Dennie Boardman, Reginald Boardman, and R. deB. Boardman