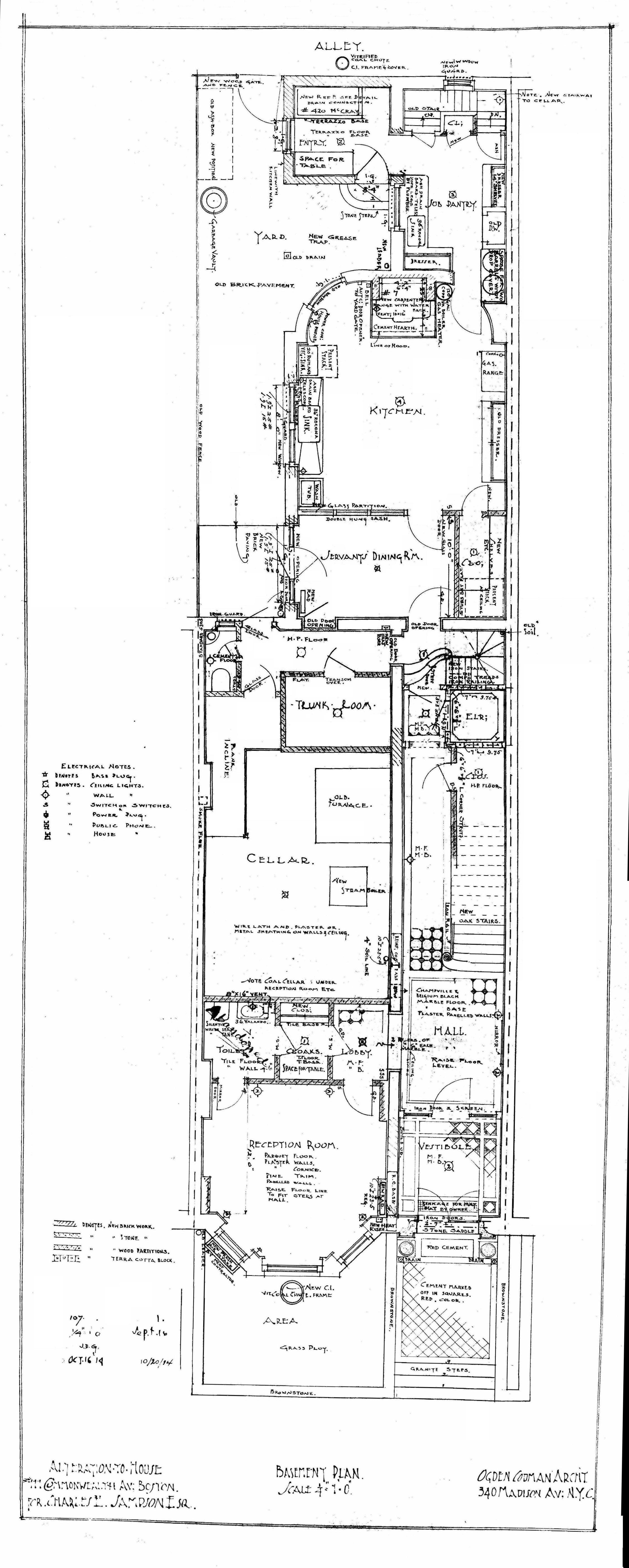
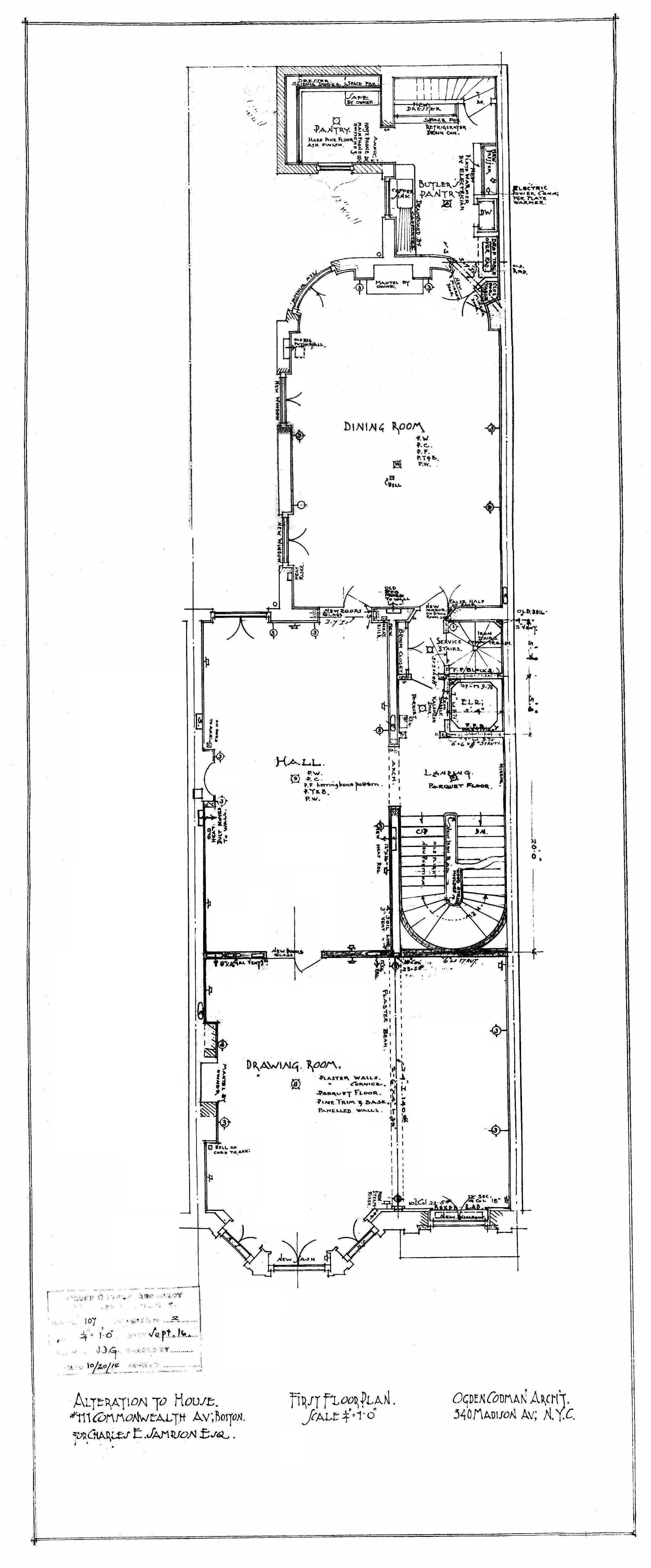
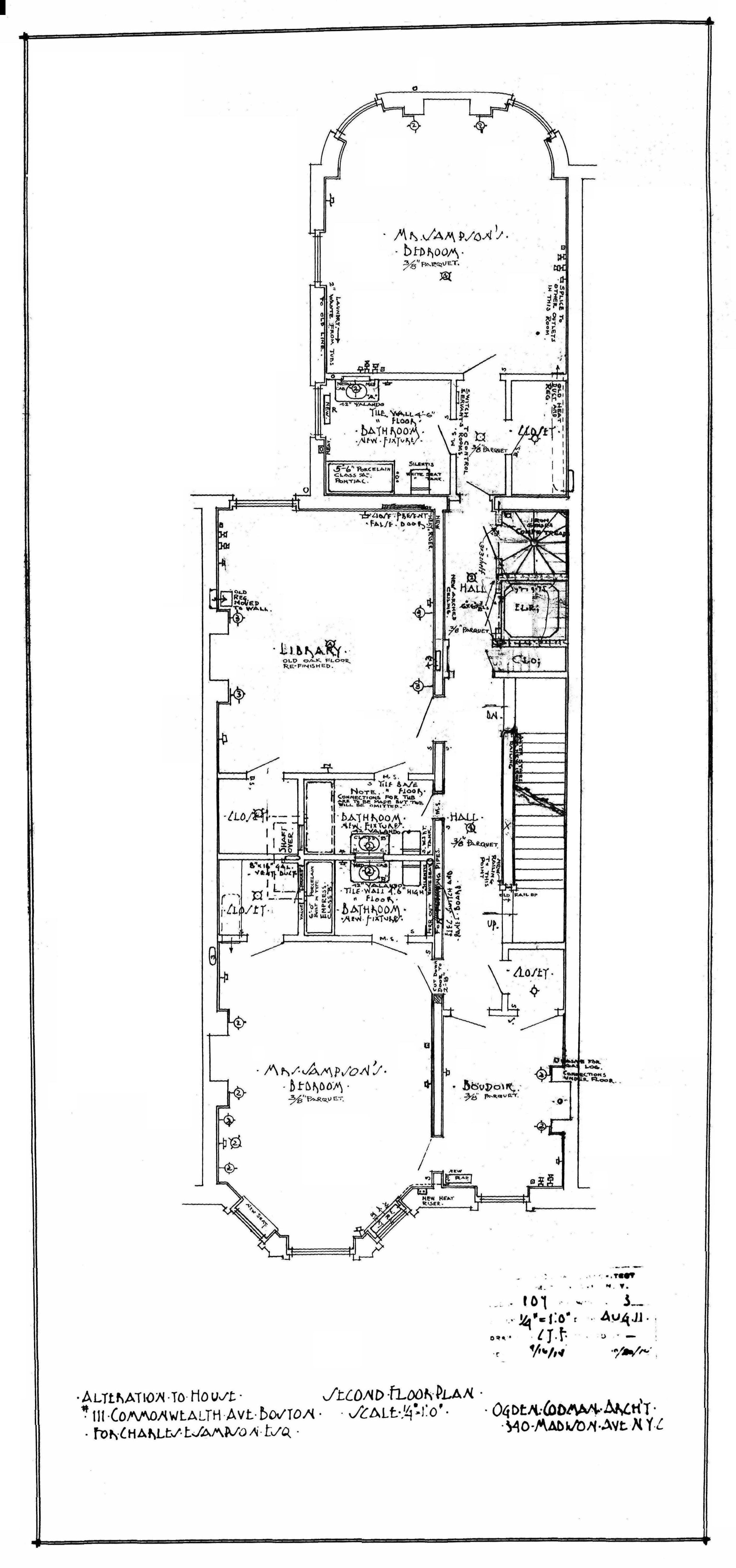
In the fall of 1914, architect Ogden Codman, Jr., prepared plans for remodeling 111 Commonwealth after it was acquired by Charles E. Sampson.
The front exterior work appears to have been limited to a new iron and glass front door with an iron and glass marquis, new window sashes on the first floor, and new stonework surrounding the entrance and the first floor window above it. The entrances to both 109 and 111 Commonwealth had been lowered to street (basement) level at an earlier date (the front elevation shows the entrances of both buildings, the entrance of 109 Commonwealth shown for perspective).
In the rear, an open “clothes yard” was added on the fourth floor, above the sewing room on the third floor, and the plans for that floor include an elevation drawing of the rear façade of the fourth floor.
The interior remodeling was extensive and included installation of an elevator, reconfiguration of rooms, new paneling and fittings, and other amenities.
The originals of the blueprints are located in the City of Boston Blueprints Collection in the Boston City Archives (reference BIN L-9) and include several additional drawings, including a foundation plan. These scans of the plans are provided courtesy of the Boston Public Library Arts Department and the Boston City Archives.






