113-115 Beacon were designed by architect Nathaniel J. Bradlee and built in 1863 for the estate of Mace Tisdale, who had died in November of 1861.
Nathaniel Bradlee’s plans for the houses were photographed by Bainbridge Bunting, author of Houses of Boston’s Back Bay: An Architectural History: 1840-1917 (The Belknap Press of Harvard University Press, Cambridge; 1967). The photographs were neither included in his book nor referenced.
Scans of the negatives of the photographs are included in the Boston Public Library’s Bainbridge Bunting Photograph Collection and have been uploaded to the Digital Commonwealth website.
The photographs include drawings of the front and rear elevations, detail of the front bay windows, front entrances, and front freestone fences, floor plans for the basement and first through fifth floors, and framing plans for the first through fifth floor and the roof. Each drawing indicates Nathaniel J. Bradlee of Boston as the architect and J. T. Bradlee [John Tisdale Bradlee] as the client. Each drawing is dated, with the dates ranging from December 1, 1862, to February 13, 1863.
The images below include all of the drawings photographed by Bunting except for the framing plans.
The plans were bound in a book with each drawing spanning two pages. The photographs have some distortion and shading along the center binding line as well as some shading and blurring in other areas. The images below have been gently manipulated to improve their overall clarity.
These images are provided courtesy of the Boston Public Library Arts Department and Digital Commonwealth, and are licensed under a Creative Commons Attribution Non-Commercial No Derivatives License.

113-115 Beacon, front elevation; drawing by Nathaniel J. Bradlee, architect, dated 23Jan1863; photograph from negative by Bainbridge Bunting (ca. 1942), courtesy of the Boston Public Library Arts Department and Digital Commonwealth

113-115 Beacon, rear elevation; drawing by Nathaniel J. Bradlee, architect, dated 24Dec1862; photograph from negative by Bainbridge Bunting (ca. 1942), courtesy of the Boston Public Library Arts Department and Digital Commonwealth

113-115 Beacon, detail of front bay windows; drawing by Nathaniel J. Bradlee, architect, dated 13Feb1863; photograph from negative by Bainbridge Bunting (ca. 1942), courtesy of the Boston Public Library Arts Department and Digital Commonwealth

113-115 Beacon, detail of entrances; drawing by Nathaniel J. Bradlee, architect, dated 31Dec1862; photograph from negative by Bainbridge Bunting (ca. 1942), courtesy of the Boston Public Library Arts Department and Digital Commonwealth

113-115 Beacon, detail of front yard freestone fences; drawing by Nathaniel J. Bradlee, architect, dated 1Jan1863; photograph from negative by Bainbridge Bunting (ca. 1942), courtesy of the Boston Public Library Arts Department and Digital Commonwealth

113-115 Beacon, basement floor plan; drawing by Nathaniel J. Bradlee, architect, dated 4Dec1862; photograph from negative by Bainbridge Bunting (ca. 1942), courtesy of the Boston Public Library Arts Department and Digital Commonwealth

113-115 Beacon, first floor plan; drawing by Nathaniel J. Bradlee, architect, dated 1Dec1862; photograph from negative by Bainbridge Bunting (ca. 1942), courtesy of the Boston Public Library Arts Department and Digital Commonwealth

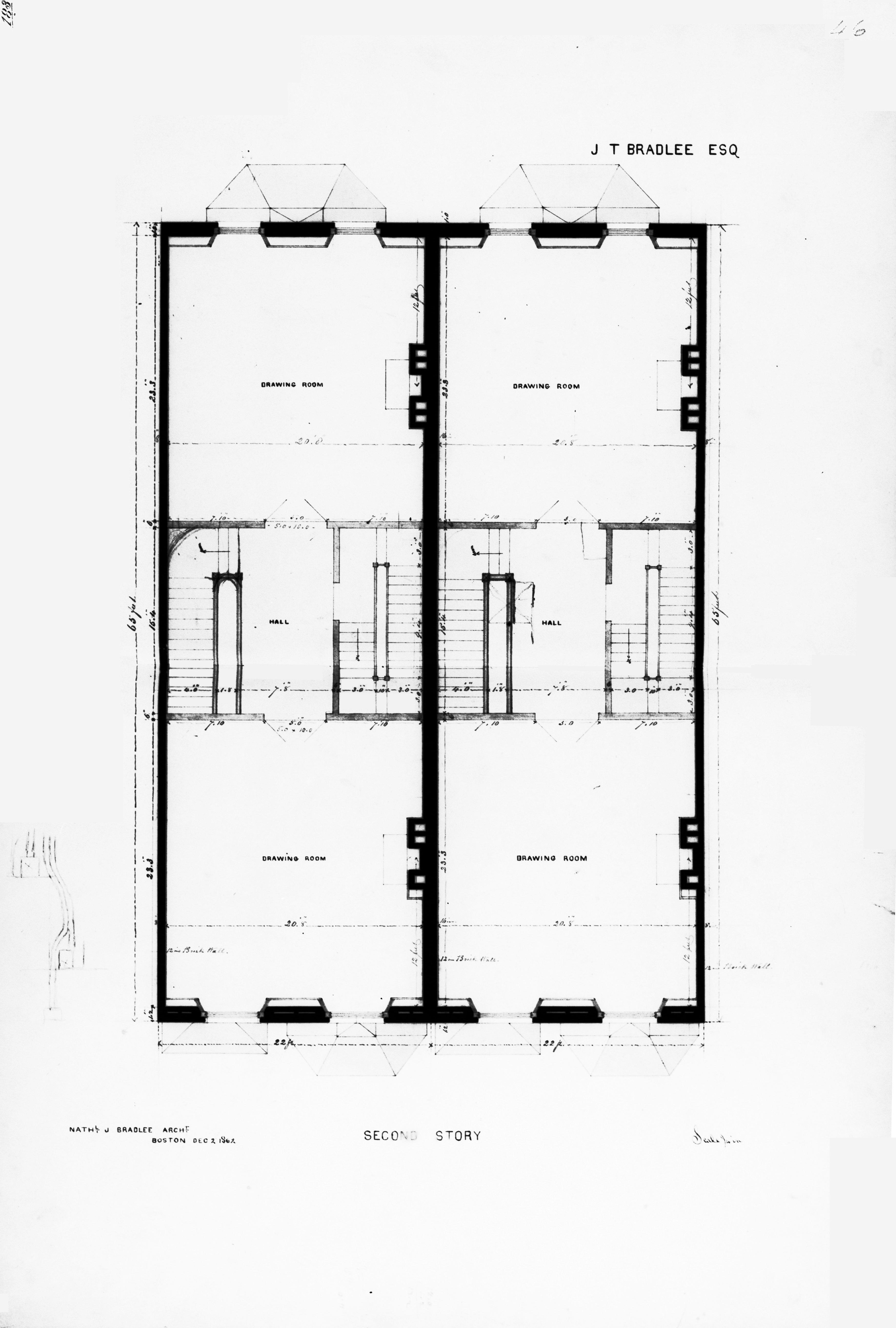
113-115 Beacon, second floor plan; drawing by Nathaniel J. Bradlee, architect, dated 2Dec1862; photograph from negative by Bainbridge Bunting (ca. 1942), courtesy of the Boston Public Library Arts Department and Digital Commonwealth

113-115 Beacon, third floor plan; drawing by Nathaniel J. Bradlee, architect, dated 3Dec1862; photograph from negative by Bainbridge Bunting (ca. 1942), courtesy of the Boston Public Library Arts Department and Digital Commonwealth

