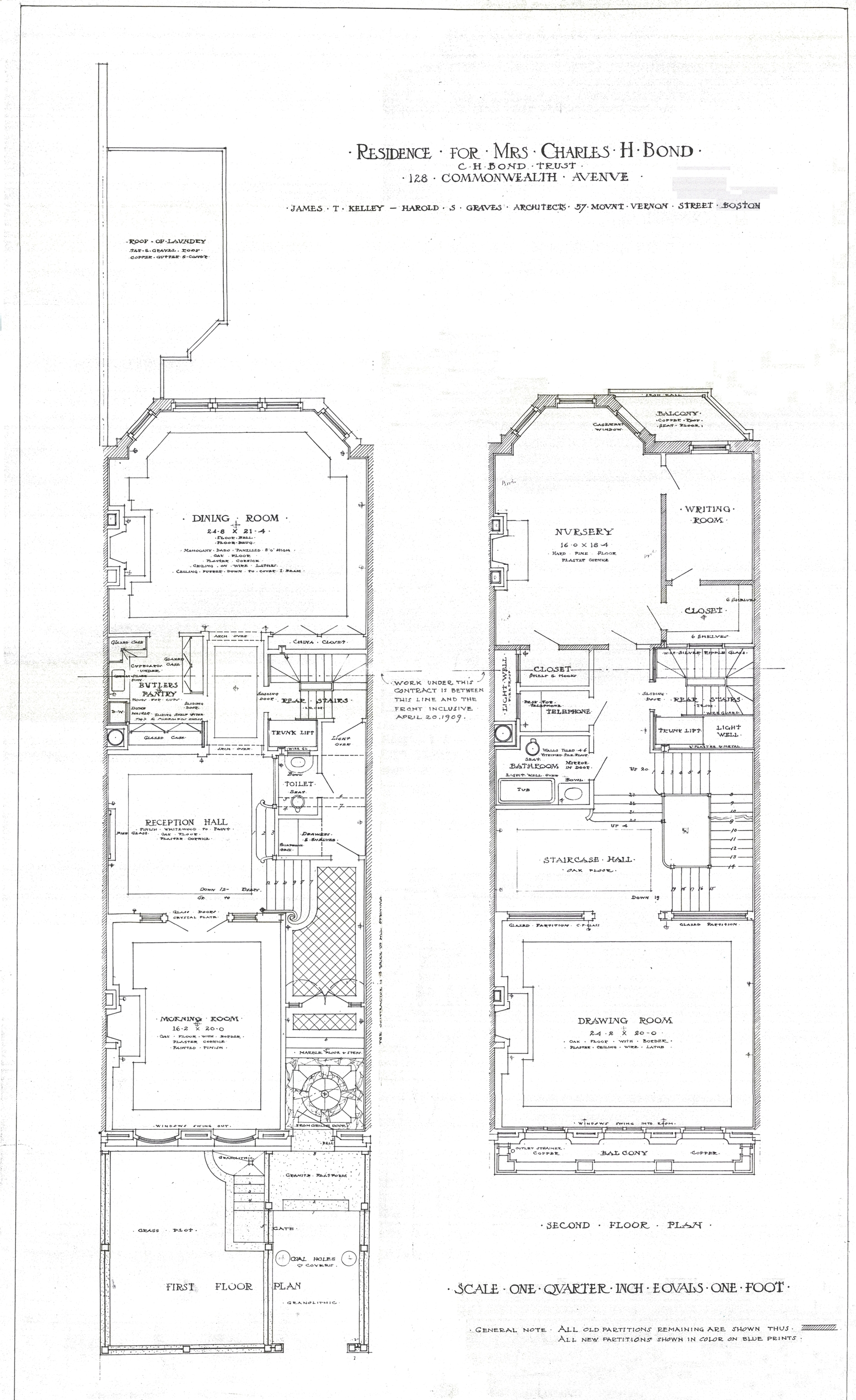
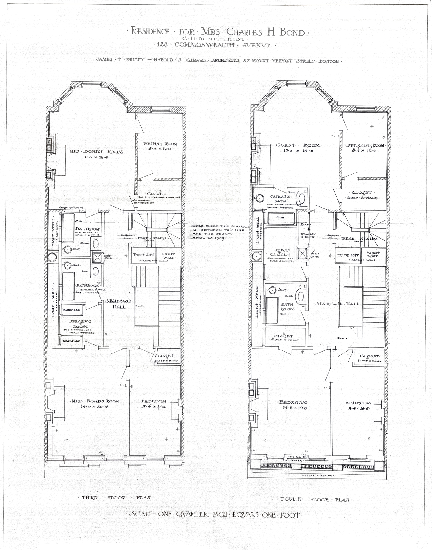
In April of 1909, architects James T. Kelley and Harold S. Graves prepared plans for remodeling 128 Commonwealth for Isabella (Bacon) Bond, the widow of Charles H. Bond.
The plans included rebuilding the front façade in a Beaux Arts design, eliminating the bay to the east of the entrance and lowering the entrance to street level. Significant interior remodeling to adjust the floor levels and modify the room arrangements also occurred.
The plans also show the addition of a one story ell on the east side at the rear, running to the alley. The drawing of the rear elevation include a notation that “no work on this rear is included in this contract of April 20, 1909,” and based on subsequent Bromley maps it appears that the ell was not built. Similarly, each of the floor plans includes a line indicating that about one-third of the area in the rear of the house was not included in the April 1909 contract.
These scans of the plans are provided courtesy of the Boston Public Library Arts Department and the Boston City Archives. The originals of the blueprints are located in the City of Boston Blueprints Collection in the Boston City Archives (reference BIN A-75).




