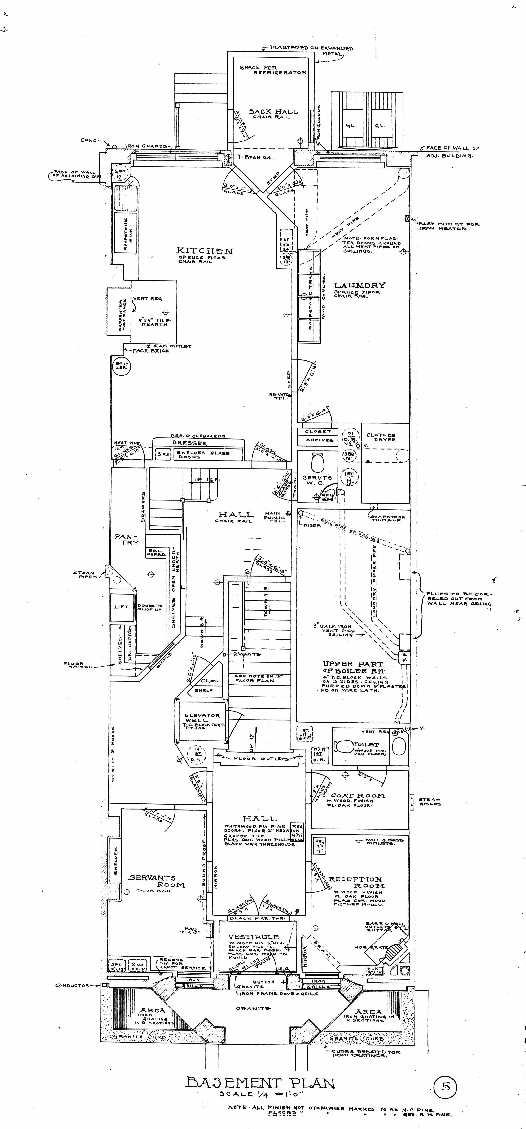
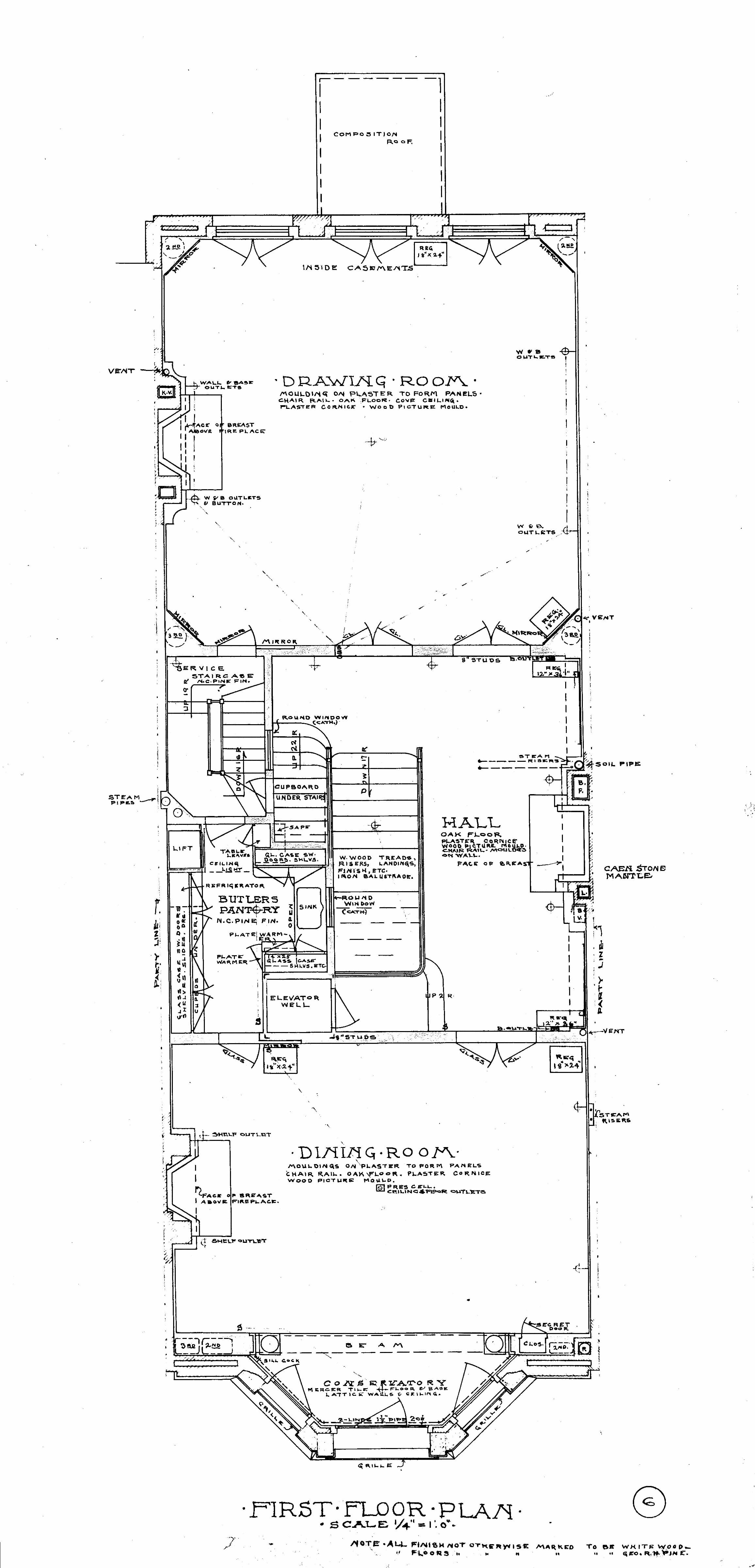
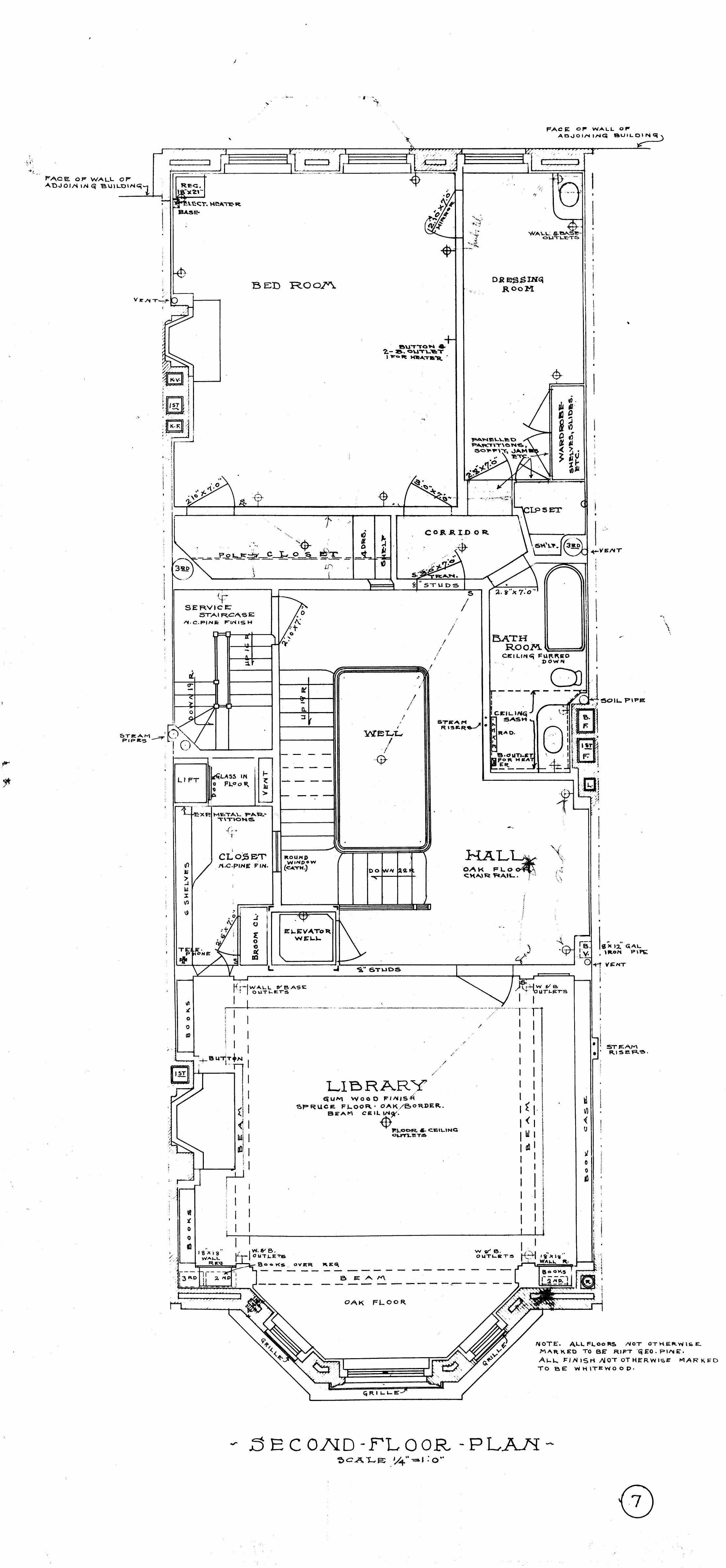
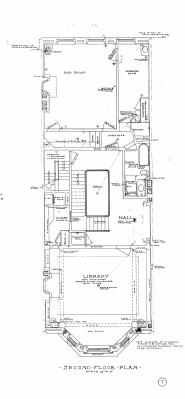
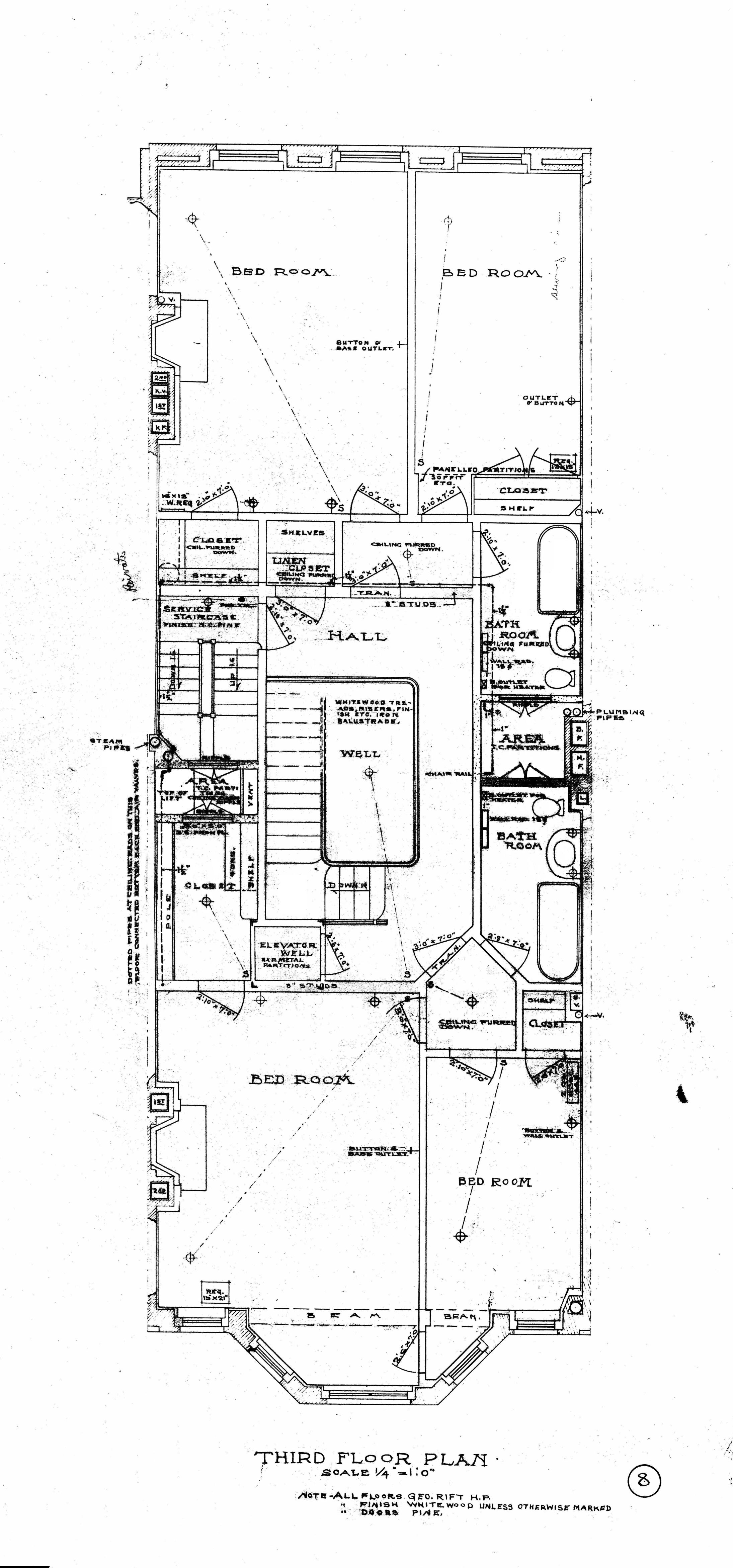
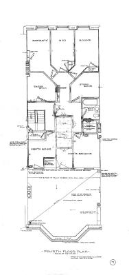
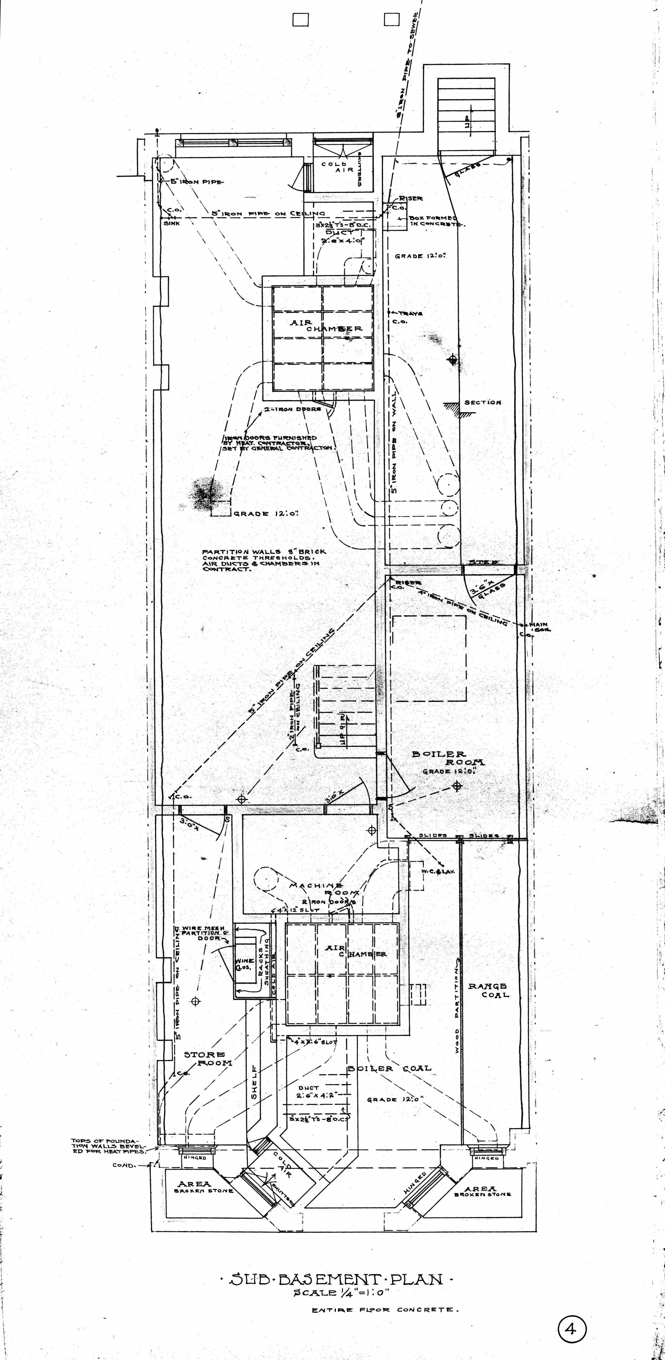
189 Marlborough was designed by Winslow and Bigelow, architects, and built in 1906 by the firm of Bigelow and Mabie (William DeFord Bigelow and William I. Mabie).
The originals of the blueprints are located in the City of Boston Blueprints Collection in the Boston City Archives (reference BIN A-34). These scans are provided courtesy of the Boston Public Library Arts Department and the Boston City Archives.






