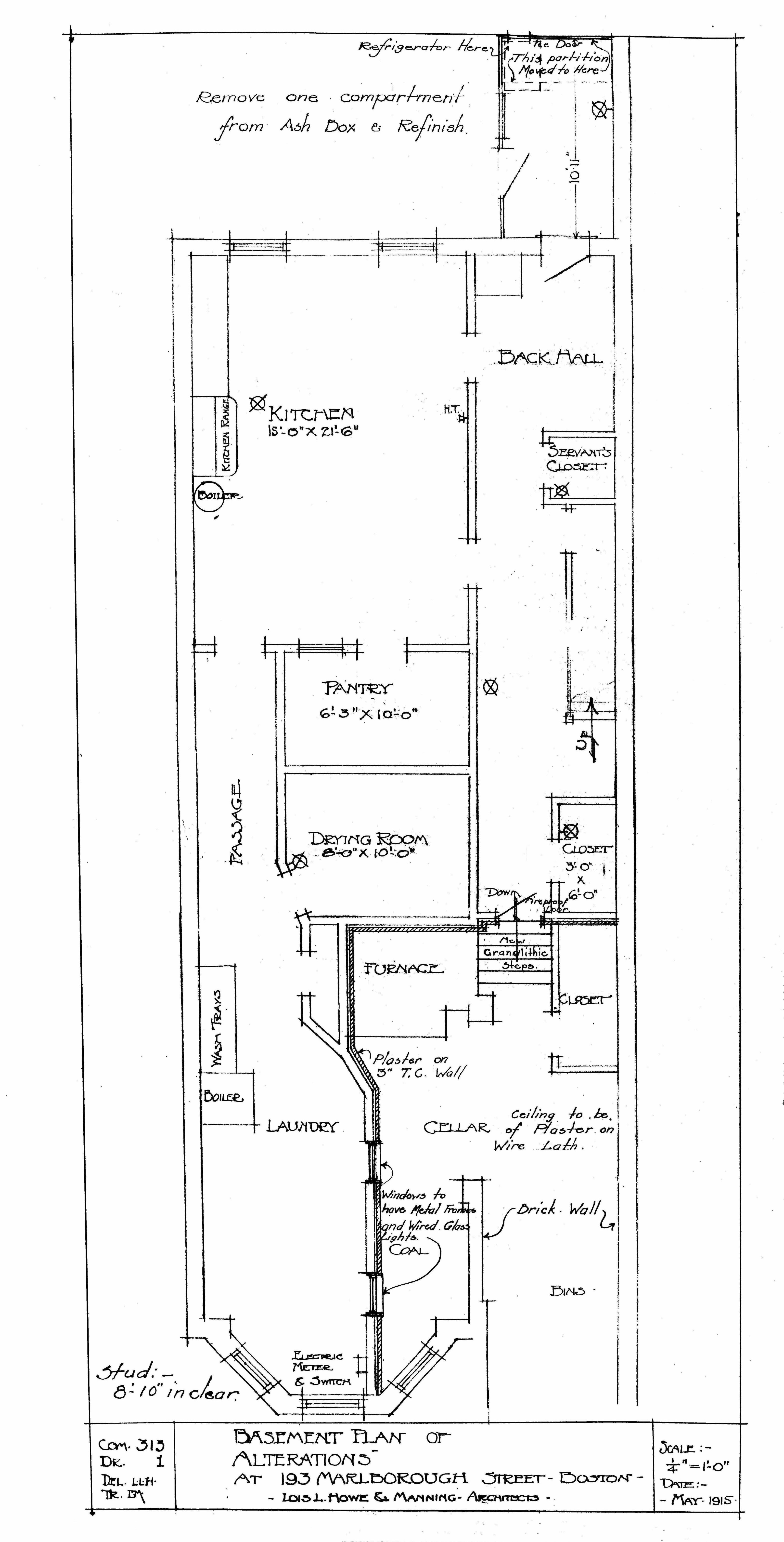
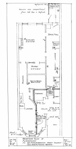
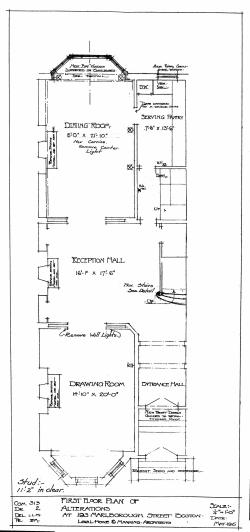
In mid-1915, the firm of Lois L. Howe and Manning, architects, prepared plans for remodeling 193 Marlborough.
The plans included a penthouse (or attic) addition with a mansard roof at the rear of building in which four servant’s bedrooms, a store room, and a bathroom were located. They also included a new bay window on first floor at the rear; a new “servants’ entrance” at the basement level in the front, and miscellaneous interior remodeling.
These scans of the plans are provided courtesy of the Boston Public Library Arts Department and the Boston City Archives. The originals of the blueprints are located in the City of Boston Blueprints Collection in the Boston City Archives (reference BIN C-15). In addition to the plans shown below, the drawings also include section drawings and a framing plan for the new penthouse.






