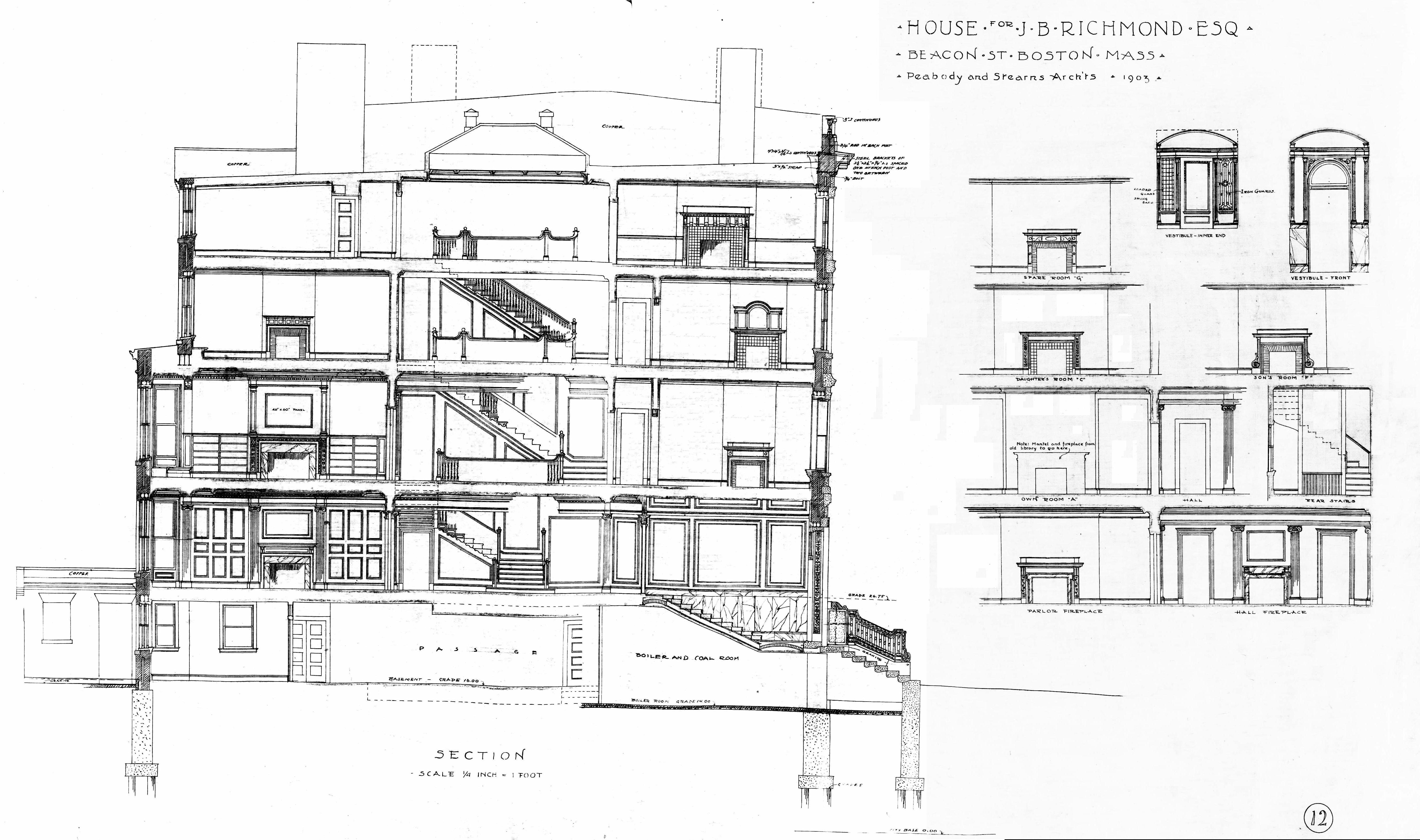
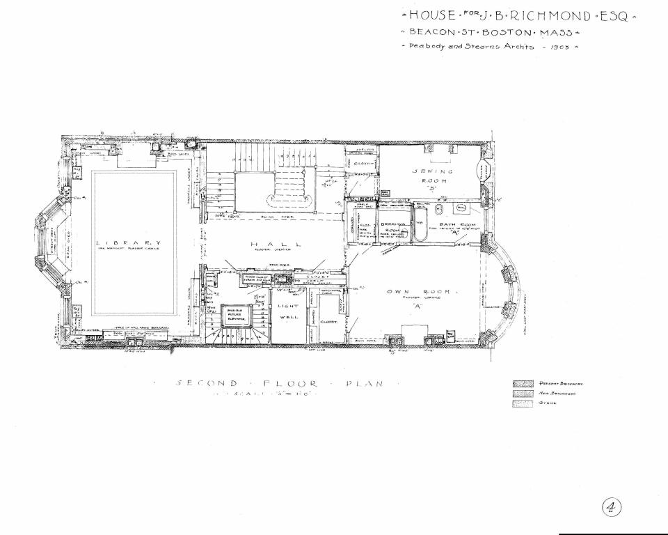
310 Beacon was designed by Peabody and Stearns, architects, and built in 1903-1904 by McNeil Brothers, builders.
The original blueprints for the house are located in both the City of Boston Blueprints Collection in the Boston City Archives (reference BIN A-89) and in the Peabody and Stearns Collection in the Boston Public Library Arts Department (reference PS/MA.133). The plans include twenty sheets of drawings, including elevations, foundation and piling plans, floor plans, framing plans, and sections.
The following drawings of the front and rear elevations, lateral section, floor plans, and plot plan are from the City of Boston Blueprints Collection; the roof plan is from the Peabody and Stearns Collection. All are provided courtesy of the Boston Public Library Arts Department and the Boston City Archives.









