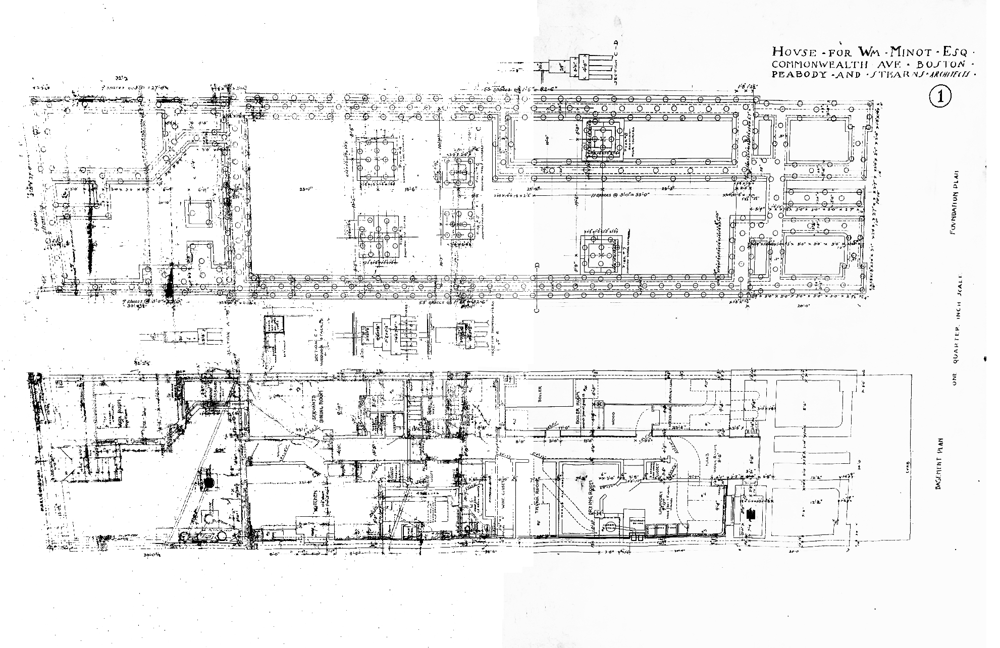
409 Commonwealth was designed by Peabody and Stearns, architects, and built in 1898-1899 by Norcross Brothers, builders.
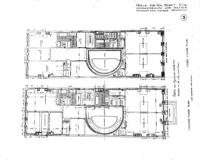
Plans for house are included in the Peabody and Stearns Collection in the Boston Public Library’s Arts Department (reference PS/MA.107). The plans include a large number of drawings, including front and rear (Marlborough Street) elevations, a lateral section, piling and foundation plans, floor plans, framing plans, interior elevations of the first floor stair hall and various other rooms, and detailed drawings of the staircase and other interior features.
These images, provided courtesy of the Boston Public Library, include the exterior elevations, lateral section, floor plans, and selected drawings of the interior.
The original drawings are fragile, in poor condition, and stained. Many are tinted with color, but have been enhanced and reproduced in black-and-white to improve readability. The piling/foundation plan and basement plan (drawing 1) is especially seriously compromised, with the left half obscured by staining and what appears to be mold. Although this portion has been digitally restored to some extent, it remains difficult to read.

409 Commonwealth, elevation of western wall of stair hall on ground floor and first floor; Peabody and Stearns (1898)

409 Commonwealth, elevation of eastern wall of stair hall on ground floor and first floor; Peabody and Steanrs (1898)







