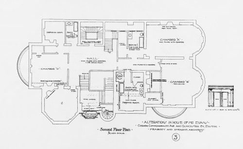
17 Gloucester was remodeled in 1901 by Peabody and Stearns, architects, for the new owners, Robert Dawson Evans and his wife. Maria Antoinette (Hunt) Evans.
The remodeling included modifying the front entrance to eliminate a conical roof on a two-story stair tower to the right of the entrance and to create an outdoor tiled terrace on the second floor, labeled a “plant bay” on the plans. A wrought iron balcony also was installed above the front entrance, accessed through the original window on the stair landing between the first and second floors. It was labeled “plant balcony” on the plans.
The remodeling also included interior modifications throughout the house.
Plans for the remodeling are included in the Peabody and Stearns Collection in the Boston Public Library’s Arts Department (reference PS/MA.055). The plans include six drawings, including floor plans for each floor and a drawing of the modified front entrance and interior stairs.
The images below, provided courtesy of the Boston Public Library, include each of the six drawings. The original plans are fragile, in poor condition, and seriously stained in several cases. They also include handwritten notations and faint sketches. These images have been enhanced to improve readability.





