Back Bay Houses

Genealogies of Back Bay Houses

Skip to content
  • Home
  • FAQ
  • Overview
    • Overview
    • 1855-1859
    • 1860-1864
    • 1865-1869
    • 1870-1874
    • 1875-1879
    • 1880-1884
    • 1885-1889
    • 1890-1899
    • 1900-1909
    • 1910-2015
    • Deed Restrictions
    • Party Wall Agreements
  • Arlington
  • Beacon
  • Berkeley
  • Charlesgate East
  • Clarendon
  • Commonwealth
  • Dartmouth
  • Exeter
  • Fairfield
  • Gloucester
  • Hereford
  • Marlborough
  • Massachusetts
  • Alleys
  • Stables
  • Architects
  • Contact

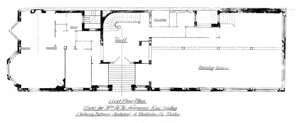
Berk 282 – First Floor Plan (1894) BW

Published July 22, 2016 at 5684 × 2344 in 282 Berkeley (29 Commonwealth).
← Previous Next →

First floor plan of 282 Berkeley (29 Commonwealth), from original blueprints drawn by J. Pickering Putnam (1894); courtesy of the Boston Public Library Arts Department

Website Powered by WordPress.com.
    • Back Bay Houses
    • Sign up
    • Log in
    • Copy shortlink
    • Report this content
    • Manage subscriptions