282 Berkeley (29 Commonwealth) is located on the NW corner of Commonwealth and Berkeley, with First Church Boston to the north, across Alley 423, 50 Commonwealth (260 Berkeley) to the south, across Commonwealth, 25-27 Commonwealth to the east, across Berkeley, and 31-33 Commonwealth to the west.
282 Berkeley (29 Commonwealth) was designed by architect J. Pickering Putnam and built in 1894-1895 for real estate developer William Henry Harrison Newman as Haddon Hall, a 26 unit apartment hotel.
William H. H. Newman was a real estate dealer and developer. He owned the Hotel Cluny at 543 Boylston, also designed by J. Pickering Putnam, where he and his wife, Sarah E. (Cole) Newman, lived.
Click here for an index to the deeds for 282 Berkeley (29 Commonwealth), and click here for further information about the land between the north side of Commonwealth and Alley 423, from Berkeley to Clarendon.
William Newman purchased the original townhouse at 29 Commonwealth on May 19, 1893, with the intention of replacing it with an apartment hotel.

282 Berkeley, architect’s rendering (ca. 1895), from Modern Architecture: A Book for Architects and the Public, by H. Heathcote Statham
In June of 1893, he petitioned the Board of Aldermen for permission to project three bays from the proposed building, extending over Berkeley Street. On June 13, 1893, the Boston Evening Transcript reported on the Board’s hearing on the petition, noting that the First Church and several other abutters had objected, arguing that Berkeley had been built as a sixty foot wide street but that the City reserved the right to widened it to eighty feet, taking a ten foot strip on either side, and that, if and when that occurred, “such bay windows would then be a serious obstruction, as they would be to the adjoining owners at the present time.” The Board concurred with the “remonstrants” and the petition was denied.
William Newman proceeded with his plans for an apartment hotel, without bays on Berkeley Street, and on April 25, 1894, the Transcript reported that he proposed that the top story of the existing house at 29 Commonwealth “will be removed and four additional stories built on, making the building seven stories high, and an addition, 24 by 32 feet in area, will be erected, also seven stories high. This addition will be constructed of brick and stone, to correspond with the old part.” The addition would have been in the former rear yard of 29 Commonwealth.
He subsequently abandoned plans to retain and remodel the original house and, instead, proposed demolishing it and building an entirely new building.
On July 16, 1894, he filed a permit application for the new building, indicating that it would be ten stories with 26 apartments. The total height, from the sidewalk to the highest part of the wall was shown as 116 feet.

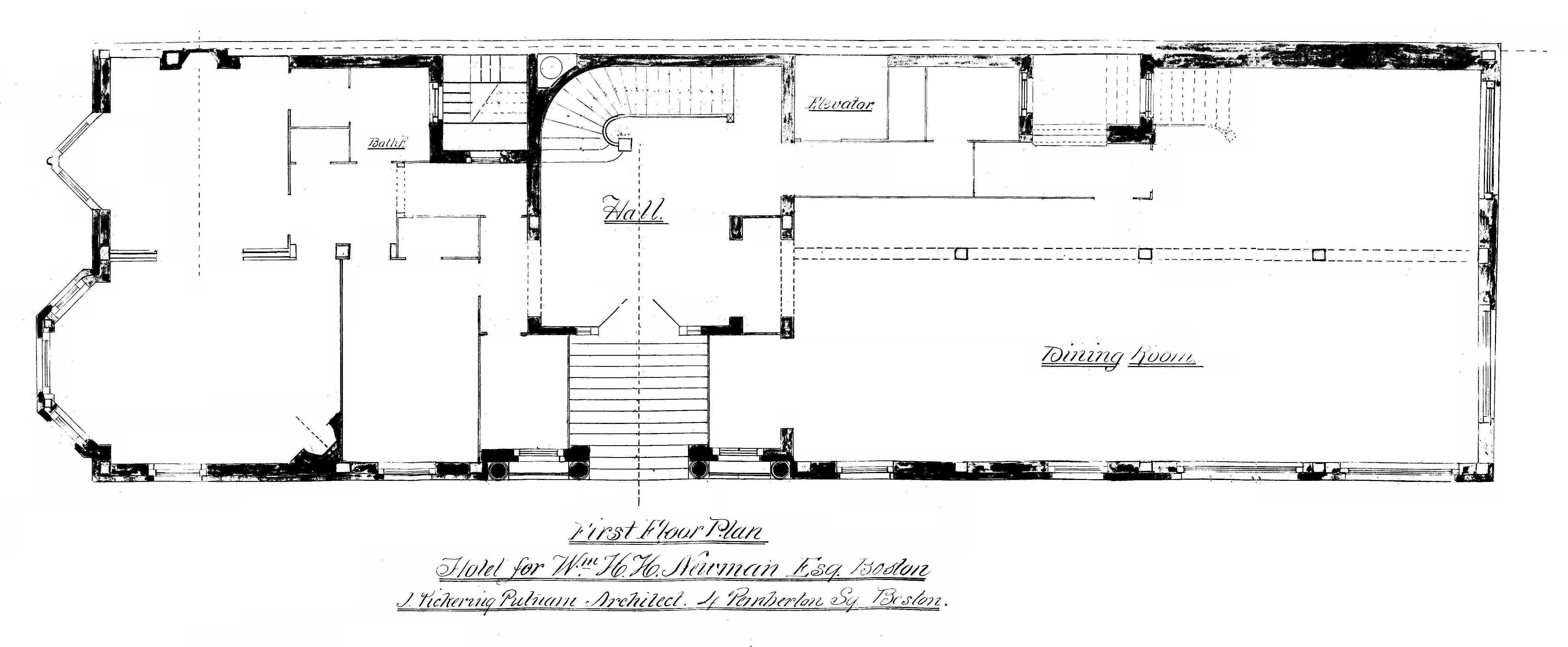
First floor plan of 282 Berkeley (29 Commonwealth), from original blueprints drawn by J. Pickering Putnam (1894); courtesy of the Boston City Archives, City of Boston Blueprints Collection
Blueprints and architectural specifications for the building – including elevations, floor plans, piling and foundation plans, and beam and steel framing plans – are included in the City of Boston Blueprints Collection in the Boston City Archives (reference BIN A-88).
Although the address frequently was shown as 29 Commonwealth, the entrance to the building was on Berkeley, with a recessed flight of stairs to the first floor. The top floor was surmounted with a high balustrade. The apartments were designed as non-housekeeping units, without kitchens, with meals served in the dining room on the first floor, similar to The Empire and The Tuileries apartment hotels, also built in the mid-1890s. The specifications for the building indicate that it would be wired throughout for electric lighting, with electric bells and speaking tubes connecting the apartments with the office, and would have steam heating and an elevator.
A July 22, 1894, article in the Boston Herald noted that “in the subcellar are the boilers, elevator and other machinery, and in the high basement are the kitchens and pantries. A large dining room occupies the rear of the first floor and smaller rooms the front. The other stories are divided into suites of apartments.”
The original permit application indicated that the building would be 10 stories in height. Based on the plans and architectural specifications, this included the basement where the kitchens and pantries were located. The Herald article and similar reports in the Boston Evening Transcript and Boston Globe described the building as nine stories, omitting the basement level.
The neighbors petitioned in opposition to the building because it would be an apartment house rather than a private residence. However, the permit was granted on August 28, 1894,and the project proceeded.
Haddon Hall opened for occupancy in early October of 1896 under the management of Walter E. Forbes, who also lived in the hotel. He was a widower. He remained the manager in 1897, but by 1898 had become manager of The Charlesgate at 4 Charlesgate East, which had been designed by J. Pickering Putnam, the architect of Hadden Hall, and was owned by him and members of his family.
At 116 feet, Haddon Hall was significantly higher than its neighboring houses. The Back Bay’s deed restrictions, written before elevators, imposed a minimum height of three stories but no maximum height. A community movement, organized under the auspices of the Twentieth Century Club, sought legislation limiting the permissible height. As a result, in 1896 a limit of 70 feet was imposed on Commonwealth Avenue (this limit was later reduced further to 65 feet). Michael Holleran’s Boston’s Changeful Times: Origins of Preservation & Planning in America (The Johns Hopkins University Press; 1998) discusses this community effort in detail.
Even after the building was completed, efforts continued to reduce its height by removing several of the top stories. In his 1899 annual message, Mayor Josiah Quincy, as quoted in the January 2, 1899, Boston Evening Transcript, commented “…I desire to call attention to the desirability of legislation to authorize the city to take and remove the upper stories of the single building on Commonwealth avenue which was carried to a considerable height above that of other buildings on this avenue shortly before the passage of the law establishing a limit of the height of buildings on parkways. The cost of this taking should not be very large, and it would restore a symmetry of sky line upon our finest residential avenue which should never have been allowed to be broken.” The effort did not come to fruition and the building remained its original height.
On October 24, 1900, Haddon Hall was purchased from William H. H. Newman by Henry Staples Potter, Jr., and one month later, on November 20, 1900, it was acquired from him by William F. Wharton and Edward Bangs, trustees of the Apartment House Trust.
On December 5, 1900, the trust was reorganized as the Metropolitan Associates.
On January 7, 1907, the Metropolitan Associates entered into a party wall agreement with Marcus Kimball, owner of 31 Commonwealth. Among its provisions, the agreement specified that the owner of 282 Berkeley (29 Commonwealth) would retain the right to have windows in the party wall “until such time as” 31 Commonwealth or a new building on “said estate shall be carried up to such height as to cover the same.”
On August 31, 1925, Haddon Hall was acquired from the Metropolitan Associates by real estate dealer Elliott Henderson and investment broker Harcourt Amory, Jr., trustees of the Berkeley Street Trust.
In about 1928, the building was converted from apartments into medical (primarily dental) offices. The last residents were listed there in the 1928 Blue Book. The Building Department records do not include the permit application for this change in use and, presumably, accompanying remodeling.
As originally built, Haddon Hall had a high balustrade above the top floor. By the late 1920s, the balustrade had been removed and a penthouse story added. The Building Department records omit any documents on this change. The original balustrade appears in photographs from 1900, but the new penthouse is visible in photographs from that late 1920s.
On December 10, 1934, Conveyancers Title Insurance and Mortgage Company foreclosed on its mortgage to the Berkeley Street Trust and transferred the building to its affiliate, Realty, Inc. Both companies subsequently went into receivership, and on October 16, 1942, George Alpert, the court-appointed receiver for Realty. Inc., transferred 282 Berkeley (29 Commonwealth) to the Conveyancers Realty Company.

282 Berkeley (29 Commonwealth) and First Church Boston (1927); courtesy of the Boston Public Library, Leslie Jones Collection.
On March 1, 1945, 282 Berkeley (29 Commonwealth) was acquired by Celia (Gorin) Leeder, the wife of real estate dealer Frank Leeder, and Adelaide (Ober) Friedman, the wife of wholesale shoe merchant Simon Friedman. Frank Leader was a real estate dealer and property manager in partnership with his brother-in-law, Harry N. Gorin,
Simon Friedman died in June of 1956 and Celia (Gorin) Leeder died in November of 1957. Adelaide (Ober) Friedman subsequently married Frank Leeder. On March 9, 1962, she transferred her half interest in 282 Berkeley (29 Commonwealth) to Frank Leeder and Harry Gorin. On July 31, 1962, Frank Leeder and Harry Gorin transferred the property to themselves as trustees of the Haddon Hall Trust.
On February 24, 1965, 282 Berkeley (29 Commonwealth) was purchased from Frank Leeder and Harry Gorin by Howard N. Levin, trustee of The Kensington Trust. He continued to operate it as an office building.
On December 30, 1986, 282 Berkeley (29 Commonwealth) was purchased from Howard Levin by Richard D. Cohen and Phil David Fine, trustees of the RDC-Commonwealth Avenue Realty Trust.

282 Berkeley (29 Commonwealth); photograph by Bainbridge Bunting, courtesy of The Gleason Partnership
On August 13, 1993, Richard D. Cohen and Jeffrey J. Cohen, trustees of the RDC – Commonwealth Avenue Realty Trust, transferred Haddon Hall to the 29 Commonwealth Limited Partnership (RDC Development Corporation, general partner).
Since 1928, Haddon Hall evolved from medical offices into a wider range of professional offices.
It remained an office building in 2017.
On January 4, 2017, 282 Berkeley (29 Commonwealth) was acquired from the 29 Commonwealth Limited Partnership by 29 Hexagon LLC (Sandra Edgerley, manager of record).
In August of 2017, 29 Hexagon LLC announced plans to convert 282 Berkeley from offices into an 800 member private club with dining, lodging rooms, and other amenities. The proposal met with significant opposition from neighboring residents, concerned about the impact on traffic, safety, and noise. In January of 2018, 29 Hexagon withdrew the proposal and announced plans to return the building to residential use. That same month, Hexagon Properties entered into a preliminary agreement to acquire the Algonquin Club at 217 Commonwealth, renovate the building, and continue its operation as a private club.
29 Hexigon LLC subsequently applied for (and received) permission to convert 282 Berkeley from an office building into nine residential units, with an automated parking system in the basement.
On October 26, 2021, 29 Hexigon LLC converted the property into nine condominium units, the Haddon Hall Condominium.
- 282 Berkeley (29 Commonwealth) (2021)
- 282 Berkeley (29 Commonwealth) (2021)
- 282 Berkeley (29 Commonwealth) (2021)
- 282 Berkeley (29 Commonwealth) (2021)
29 Commonwealth (Demolished)

29-31-33 Commonwealth (ca. 1870), photograph by Frederick M. Smith, II; courtesy of the Print Department, Boston Public Library
The townhouse which Haddon Hall replaced was built in 1863-1864, one of three contiguous houses (29-31-33 Commonwealth) built at the same time, and one of ten contiguous houses (29-31-33-35-37-39-41-43-45-47 Commonwealth) built in the same design between 1863 and 1873.
Bainbridge Bunting’s Houses of Boston’s Back Bay indicates that 29 Commonwealth was built ca. 1864 and does not attribute it to a specific architect. However, a May 15, 1863, article in the Boston Transcript indicates that 29-31-33 Commonwealth were designed by Gridley J. F. Bryant and Arthur D. Gilman.
29 Commonwealth was built as the home of Joshua Stetson and his wife Ellen (Lamb) Treadwell Stetson. They previously had lived in Brookline. He purchased the land for 29 Commonwealth on June 3, 1863, from the Commonwealth of Massachusetts.
Click here for an index to the deeds for the original townhouse at 29 Commonwealth.

29 Commonwealth, Berkeley façade (ca. 1869); Josiah Johnson Hawes Collection (#455), courtesy of The John F. Kennedy Library Foundation, Boston (licensed by The John F. Kennedy Library Foundation. all rights reserved).
Joshua Stetson was a textile merchant and treasurer of the Washington Mills in Lawrence and the Burlington Mills in Burlington, Vermont.
On July 16, 1869, 29 Commonwealth was purchased from Joshua Stetson by Elizabeth Brown (Francis) Bowditch, the widow of attorney Nathaniel Ingersoll Bowditch.
Joshua Stetson died later that month, and Ellen Stetson moved to 145 Beacon.
Elizabeth Bowditch made 29 Commonwealth her home. She previously had lived at 9 Pemberton Square. She also maintained a home in Brookline.
Elizabeth Bowditch died in January of 1892, and on May 10, 1893, it was offered for sale at public auction by the executors of her estate. William H. H. Newman was the successful bidder and took title to the property on May 19, 1893.
William Newman subsequently razed the house and built Haddon Hall in its place.

29-31-33 Commonwealth, Berkeley and alley façades (ca. 1869); detail from photograph of First Church Boston by Josiah Johnson Hawes, courtesy of Historic New England. Click here to view the entire image.








