Back Bay Houses

Genealogies of Back Bay Houses

Skip to content
  • Home
  • FAQ
  • Overview
    • Overview
    • 1855-1859
    • 1860-1864
    • 1865-1869
    • 1870-1874
    • 1875-1879
    • 1880-1884
    • 1885-1889
    • 1890-1899
    • 1900-1909
    • 1910-2015
    • Deed Restrictions
    • Party Wall Agreements
  • Arlington
  • Beacon
  • Berkeley
  • Charlesgate East
  • Clarendon
  • Commonwealth
  • Dartmouth
  • Exeter
  • Fairfield
  • Gloucester
  • Hereford
  • Marlborough
  • Massachusetts
  • Alleys
  • Stables
  • Architects
  • Contact

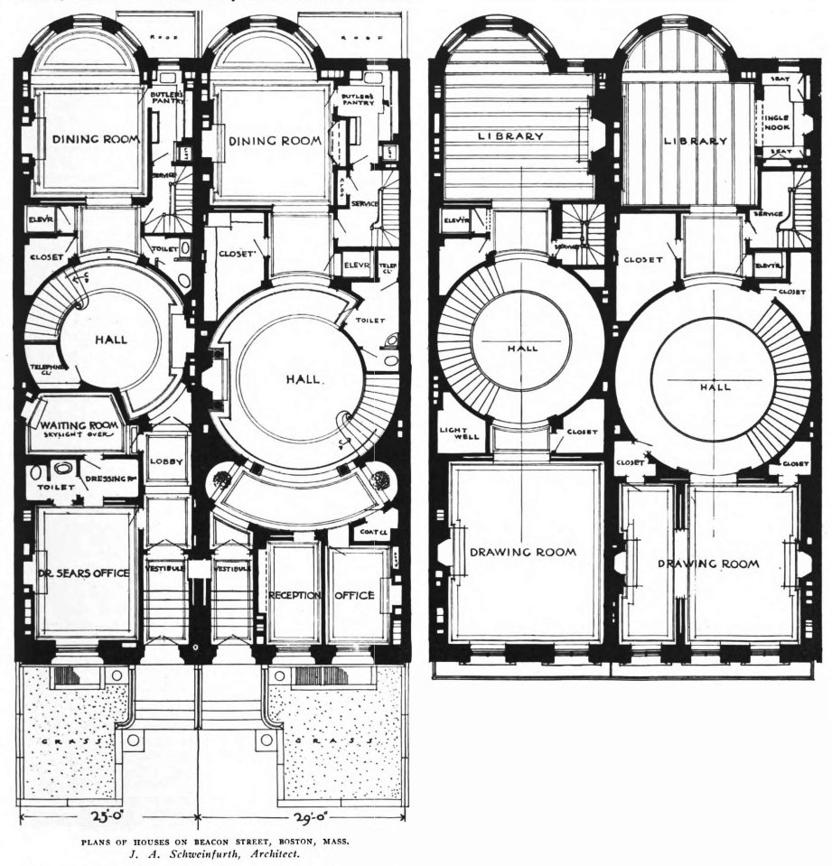
Beac 424-426 floor plans AABN 10Feb1906

Published September 4, 2021 at 2202 × 2292 in 424 Beacon.
← Previous Next →

424-426 Beacon floor plans; American Architect and Building News, 10Feb1906

Website Powered by WordPress.com.
    • Back Bay Houses
    • Sign up
    • Log in
    • Copy shortlink
    • Report this content
    • Manage subscriptions