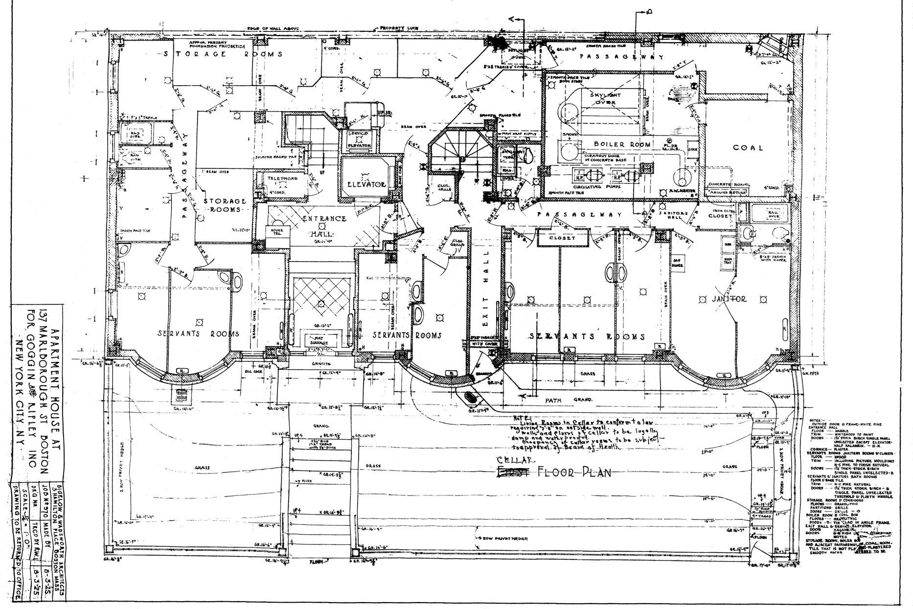
137 Marlborough (317 Dartmouth) was designed by Bigelow and Wadsworth, archictects, and built in 1925 by the Leighton-Mitchell Company, general contractors, for 137 Marlboro Street Trust (Victor T. Goggin, James M. Riley, and Richard DeBlois Boardman, trustees).
These scans are from the original blueprints located in the City of Boston Blueprints Collection in the Boston City Archives (reference BIN N-17). and are provided courtesy of the Boston Public Library Arts Department and the Boston City Archives.
The scans below are of the floor plan for the entry level floor (marked “First Floor” and changed to “Cellar”) and a typical residential floor. The original blueprints also include a partial floor plan of the first floor, with a separate entance on Dartmouth, details of the north wall showing the placement of the chimneys, fireplace elevations, and other details.

