291 Beacon was designed by architect Samuel J. F. Thayer and built in 1881-1882 by David Connery & Co., masons, and John Rawson, carpenter, as the home of Daniel Haridon Lane and Susan M. (Winn) Lane.
A set eleven drawings of the house prepared by Samuel J. F. Thayer was acquired from a private party by BackBayHouses.org in February of 2020.
The drawings were contained in a cloth-lined leather case, tacked to a wooden roll. The inside of the case is imprinted: “To be returned to S. J. F. Thayer, Arch’t. 40 Water St. Boston.” It appears that this was a set of plans provided by Samuel S. J. Thayer to the Daniel and Susan Lane for their approval, prior to construction of the house.
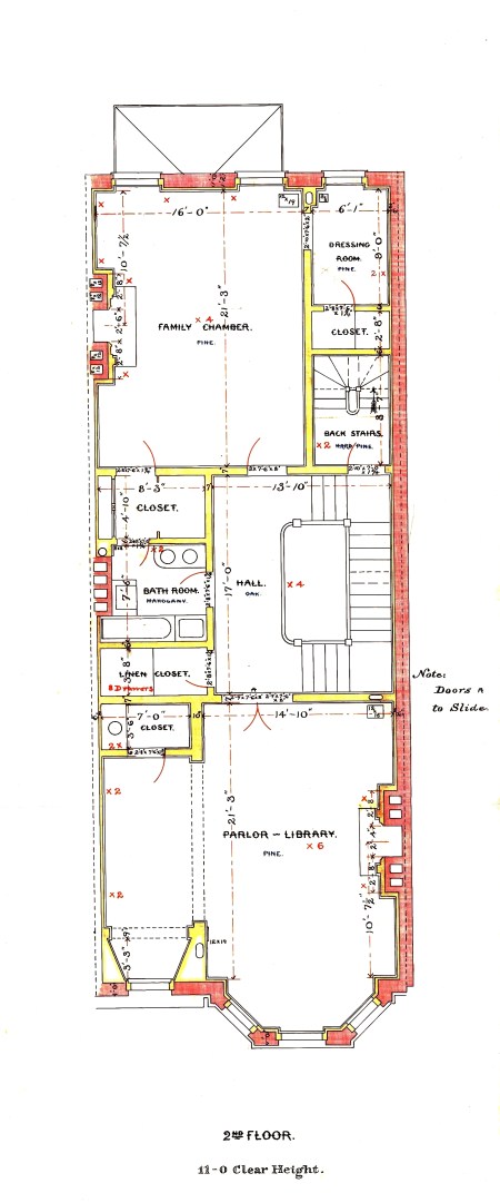
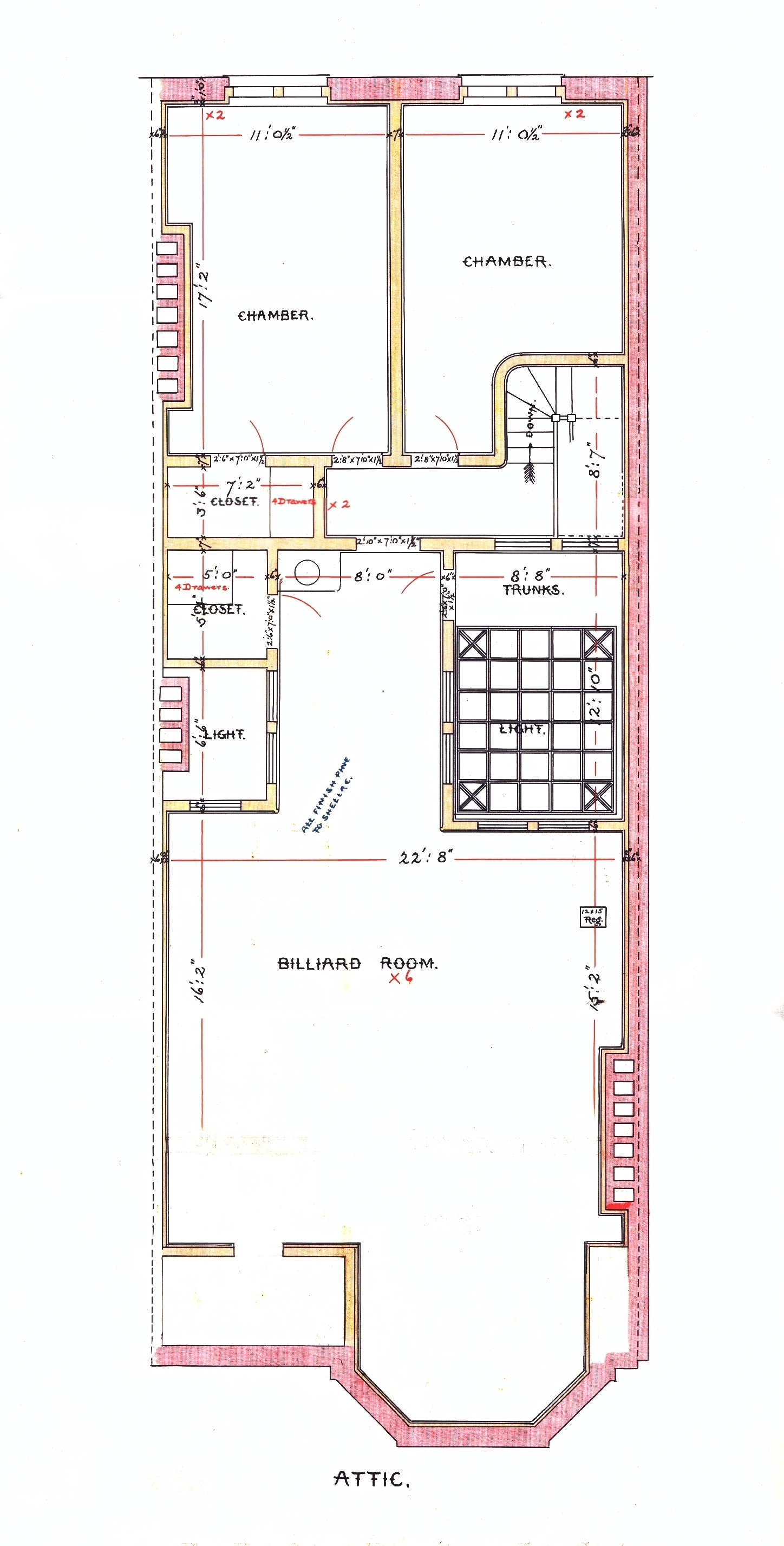
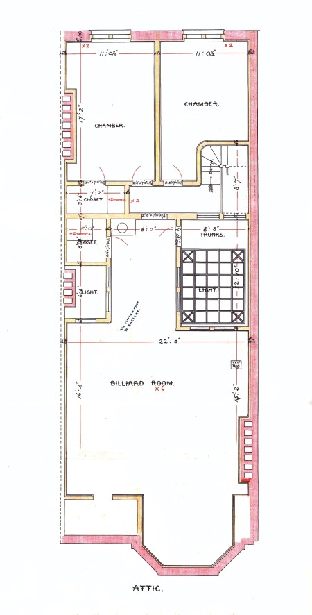
Below are scans of the eleven drawings. Included are front and rear elevations, a foundation and pile plan, floor plans for the basement, first, second, third, and attic floors, and detail drawings of the main staircase and hall fireplace, the fireplace flues, and the cornices.

291 Beacon, main staircase and hall fireplace; Samuel J. F. Thayer (1881)










