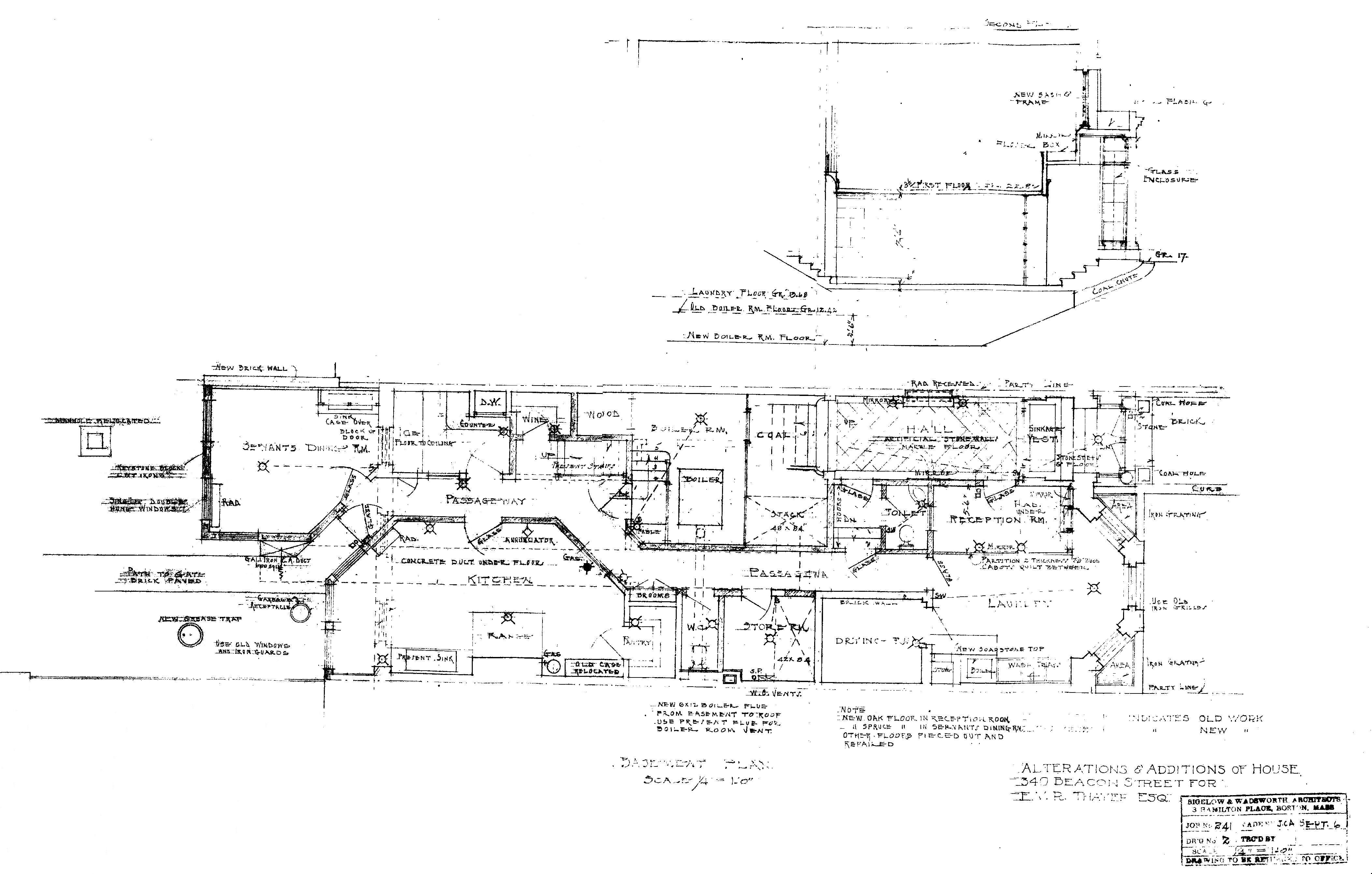
In September of 1912, architects Bigelow and Wadsworth prepared plans for remodeling 340 Beacon for Eugene V. R. Thayer, including lowering the front entrance to street level so that it entered into the basement, and adding a rear ell.
Plans for the remodeling are included in the City of Boston Blueprints Collection in the Boston City Archives (reference BIN A-67). They include ten sheets of drawings, including front and rear elevations, a piling plan for the rear addition, floor plans for the basement and first through fourth floors, detail of thegrill for new front entrance, and framing plans for the basement, first, and second floor (on one drawing).
Below, courtesy of the Boston Public Library Arts Department and the Boston City Archives, are scans of the drawings of the lower portion of the front elevation, showing the proposed new entrance, and detail for the grill for the new entrance, the basement floor plan showing the new front entrance and the rear addition, and the rear elevation.

Lower portion of the front elevation of 340 Beacon (1912), showing proposed new entrance, and detail of the grill for the new entrance, by Bigelow and Wadsworth

