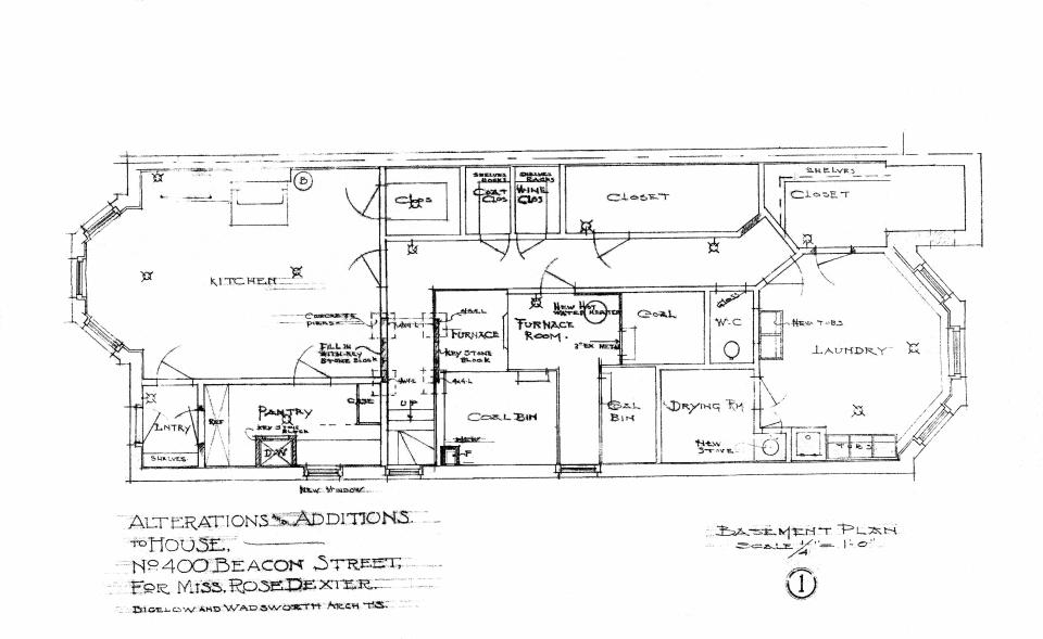
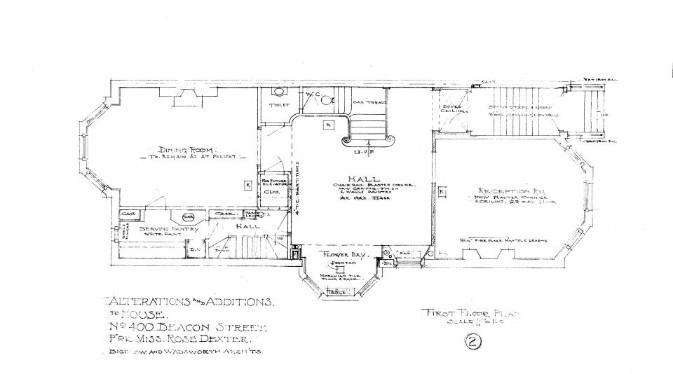
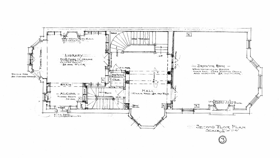
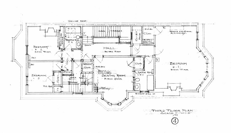
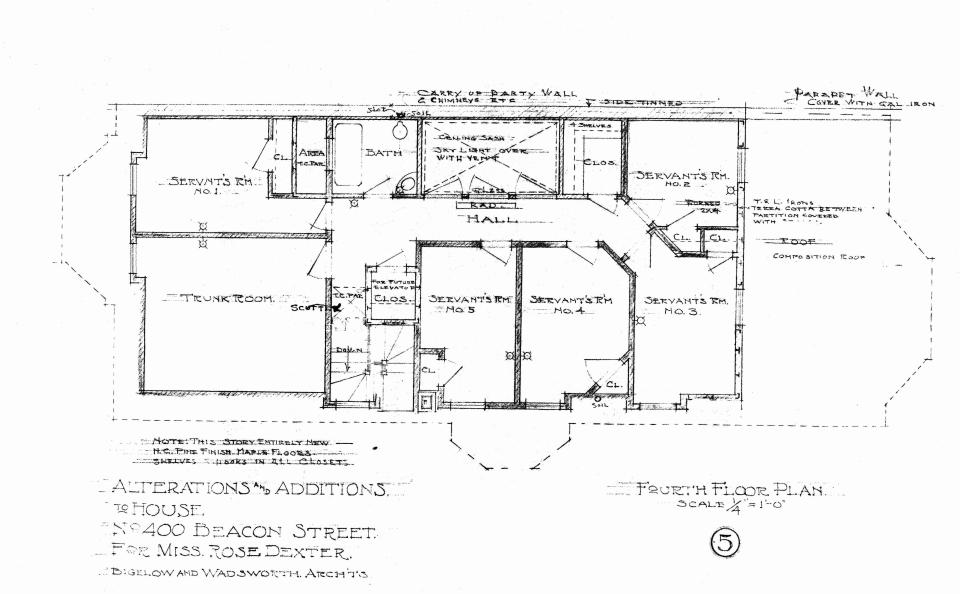
In 1910, architects Bigelow and Wadsworth prepared plans for remodeling 400 Beacon after it was acquired by Miss Rose Linzee Dexter.
The remodeling included lowering the front entrance to street level, adding a fourth story for servants quarters, and modifying the rooms on the other floors.
The originals of the blueprints are located in the City of Boston Blueprints Collection in the Boston City Archives (reference BIN A-5) and include additional drawings showing Gloucester Street, front, and rear elevations of the new story. These scans are provided courtesy of the Boston Public Library Arts Department and the Boston City Archives.





