24 Charlesgate East (419 Commonwealth) was designed by Peabody and Stearns, architects, and built in 1891-1892 by Woodbury & Leighton, builders. The original house was built at the corner of Commonwealth and Charlesgate East with an open side yard about 55 feet on Charlesgate East running to Marlborough.
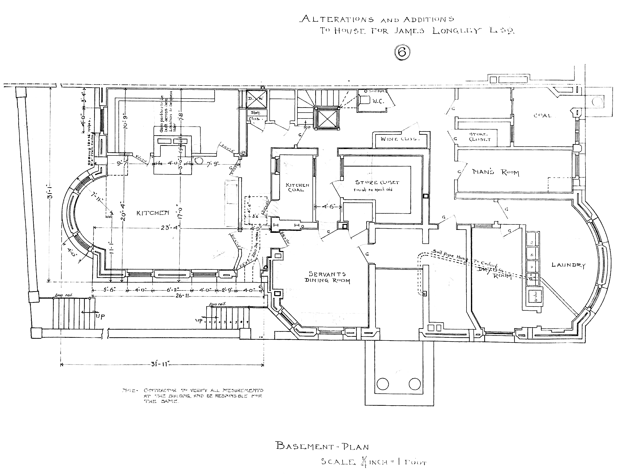
In 1895-1896, Peabody and Stearns designed a two story (plus basement) addition occupying about 32 feet of the vacant lot north of the original house. The kitchen, dining room, and servants’ quarters were moved to the addition, and the basement, first, and second stories of the original house were remodeled.
Plans for the addition are included in the Peabody and Stearns Collection in the Boston Public Library’s Arts Department (reference PS/MA.097). The plans include drawings of the Charlesgate East and Marlborough elevations; floor plans for the basement, first, and second floors (including the original house and the addition); a roof plan; a plot plan; piling and foundation plans, framing plans; and plans for the area stairs, dumb waiter, and stone yard walls. The plans also include a drawing by architects Winslow and Wetherell showing a section of the roof; these plans may be from a later period.
The plans are not dated. However, the work was completed sometime between September of 1895, when James Longley purchased the house, and 1897, and almost certainly in 1896. The addition is not shown on the 1895 Bromley map but is shown on the 1897 Sanborn map.
These images, provided courtesy of the Boston Public Library, include the Charlesgate East and Marlborough elevations of the addition, the roof plan and roof framing plan for the addition, and floor plans for the basement, first, and second floors, including both the original house and the addition.
The original plans are fragile, in poor condition, and somewhat discolored. These images have been enhanced to improve readability.

24 Charlesgate East, basement plan, showing rear addition and original house (ca. 1896), Peabody and Stearns

24 Charlesgate East, first floor plan, showing rear addition and original house (ca. 1896), Peabody and Stearns




