160 Commonwealth is located on the SW corner of Commonwealth and Dartmouth, with 152 Commonwealth (287 Dartmouth) to the east, across Dartmouth, 172 Commonwealth to the west, 306 Dartmouth to the north, across Commonwealth, and 278 Dartmouth (149 Newbury) to the south, across Alley 434.
The original portion of the Hotel Vendome, located at the corner of Commonwealth and Dartmouth with a 74 foot frontage on Commonwealth, was designed by architect William G. Preston and built in 1870-1872. The addition to the west, with a 156 foot frontage, was designed by architects Ober and Rand and built in 1881-1882. The total frontage on Commonwealth is 242.4 feet, including an open space about 12 feet wide between the hotel and 172 Commonwealth. In 1972, while it was being remodeled, the building suffered a major fire that destroyed the central tower and the southeast corner of the building. The building was converted into residential and commercial condominiums in 1975.
Click here for an index to the deeds for 160 Commonwealth, and click here for further information about the land between the south side of Commonwealth and Alley 434, from Dartmouth to Exeter.
Original Hotel Vendome: Charles A. Wood ownership. The original Hotel Vendome was designed by architect William G. Preston and built for insurance agent and real estate investor Charles Austin Wood. He and his wife, Caroline Elizabeth (Wilson) Wood, lived at 319 Columbus Avenue; they moved to and then at the hotel after it had been completed.
The original hotel building was located at the corner of Commonwealth and Dartmouth, with an Italian marble façade. Within the building there were four separate two-story residences, each with its own street entrances, and about sixteen apartments. Two of the separate residences faced Commonwealth, with entrances at 154 and 156 Commonwealth, in the center of the Commonwealth façade (Charles and Caroline Wood made their home at 154 Commonwealth, on the corner of Commonwealth and Dartmouth), and the other two faced Dartmouth, with entrances at 286 and 288 Dartmouth, on the southern portion of the Dartmouth façade. The apartments were entered through the main hotel entrance at 290 Dartmouth in the center of the Dartmouth façade.
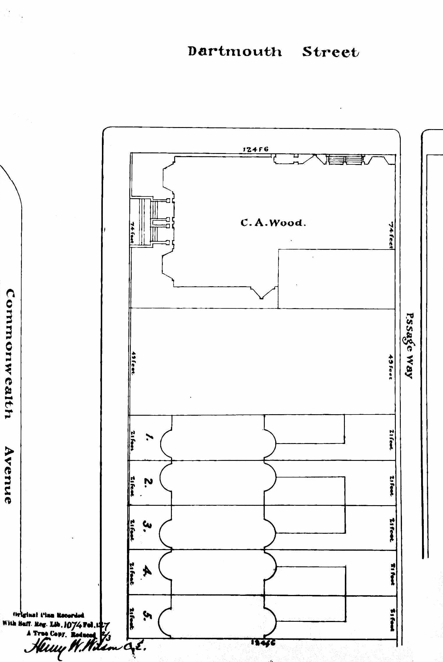
To the west of the main building was an annex located on the southern half of a 49 foot wide lot, and to the west of that were five brownstone townhouses, also designed by William G. Preston, each 21 feet wide, numbered 160-162-164-166-168 Commonwealth.
The land, with a total frontage on Commonwealth of 228 feet, was sold by the Commonwealth of Massachusetts at auctions on February 5, 1870, and March 7, 1871. Charles Wood was the successful bidder and on March 21, 1870, he filed a Notice of Intention to Build with the Board of Aldermen. He subsequently purchased the land from the Commonwealth in three separate parcels on November 29, 1870, September 29, 1871, and November 16, 1871.
A September 29, 1871, Boston Traveller article on William G. Preston described the new hotel’s design and construction:

Plan of land showing Hotel Vendome building and five townhouses, filed with deed of land from the Commonwealth of Massachusetts, 29Sep1871 (Suffolk County Deed Registry, Book 1074, p. 127)
“The building is of Italian marble, with enrichments of Cincinnati or Buena Vista freestone, which forms a pleasing contrast. The roof is covered entirely with rolled copper. The halls are paved to a great extent with marble and French tiling. An elaborate marble, planelled wainscoting is built around the parlors, and everything about the building is carried out in a corresponding degree of elegance. The cost will be about $200,000, and it is intended to make this the most desirable and sumptuous establishment of the kind in the city.
“Every room in the building has exterior windows, free light and air, and all the modern conveniences are distributed with lavish hand. A complete burglar alarm and telegraphic system is carried out in the building, more than two miles of insulated wire being used for that purpose.
“An elegant dining hall, 30×40, with glass roof, is provided for the occupants of the suites of apartments, the lower two stories of the building being arranged in four separate houses – complete in every particular – with separate entrances on the avenue and on Dartmouth street, but whose occupants, by means of dumb-waiters, are enabled to have their meals served from the hotel kitchen, if they so choose – accomplishing that much desired object – private housekeeping without servants.
“Mr. Preston has also under way a block of five first class freestone-front residences on the avenue, just beyond the hotel, for the same gentleman, which will be completed the coming fall.”
The Traveller article indicated that the hotel “is now rapidly approaching completion, and will be opened early in October” of 1871. The opening was delayed, however until mid- or late-1872. On April 1, 1872, the Boston Herald reported that “‘Vendome’ is to be the name of the new private hotel at the corner of Commonwealth avenue and Dartmouth street,” and later than month advertisements began to appear in the Boston Traveller announcing that “apartments can now be secured in this Elegant Family Hotel, by early application to the proprietor.” The advertisements indicated that “the apartments are nearly ready for occupancy, and the Hotel will be opened June 1, 1872.”
On June 6, 1872, Charles Wood sold the 123 foot wide parcel of land “and unfinished family hotel thereon” east of the five townhouses to The Vendome Hotel Company, of which he was the president. He retained the five townhouses, which were operated in conjunction with the hotel.
On July 19, 1872, the Boston Traveller reported that ”the entire house is about done, and in fact, Mr. Charles A. Wood, the owner, has already taken possession of the house on the corner of the avenue and some of the suites are already let and partly occupied.” However, the advertisement announcing that the hotel would soon open continued to be published unchanged (with the June 1, 1872, opening date) until late October of 1872, and possibly later.
The hotel was built as a “family hotel” and designed primarily to serve permanent residents rather than transient guests. An October 21, 1873, article in the Boston Globe described it in some detail:
“There are comparatively few of the residents of this city who are aware of the superior advantages offered at the Hotel Vendome to those desirous of securing the comforts of a quiet home life, without the troubles and vexations of housekeeping. The collection of buildings which constitute the hotel is located at the corner of Commonwealth avenue and Dartmouth street, and, although the foundations were laid over three years ago, the entire fitting of the building is not yet complete, so careful and thorough has been the work in the details.
“In the main hotel building, which makes the corner of the structure, there are about sixteen suites of apartments, all of which are occupied, together with a good dining room, billiard and reception rooms and office. Adjoining the main building on Commonwealth avenue, are some five or six dwelling-houses which are connected with the hotel and are in fact a part of it, being connected with the main building by covered corridors. The upper corridor is so arranged as to afford a promenade of 150 feet or more, through a conservatory filled with birds and flowers.
“Arrangements can be made either to have one’s meals served within the suite of rooms occupied, or in the grand dining hall, where a separate table is provided for each suite and held in readiness for use at any hour designated by the guests. The expenses of living at the Hotel Vendome are very moderate, when the location and the attractions of the establishment are considered, and, as a matter of economy, those seeking a home will do well to examine the two or three suites of rooms now vacant. The taste shown throughout the building can hardly be over-praised, as the eye meets with nothing but harmonious colorings and elegant designs in all parts of the structure, and the use of white and colored marbles, with walnut in the finish of the halls and stairways, produces one of the many beautiful effects which characterize all the inside fittings of the hotel. All the conveniences of hotel life are provided, including speaking tubes, annunciators, and an elevator, and the management of the cuisine is in the hands of a competent person, who has given great satisfaction to those who have resided at the hotel during the last year.”
In August of 1875, Charles Wood advertised the hotel’s “fourth season.” An August 25, 1875, advertisement in the Boston Globe advised that “families returning from Europe, those relinquishing housekeeping, and others requiring first-class accommodations, can secure elegant furnished apartments, ‘en suite’ at this quiet Home, the most beautiful location in the city, with select class of patrons, and every accessory appropriate to a first-class, modern Hotel. Separate tables furnished each family. Billiard room free for use of the guests. Prices reasonable. We can furnish more real Home comforts for the money than any hotel in the city.”
A “special notice” advertisement by the hotel in the August 26, 1875, Boston Globe announced the availability of one of the suites with a separate entrance on Commonwealth: “This suite has a spacious entrance from 156 Commonwealth avenue; the parlors are elegantly finished in marble and with black walnut inlaid with bronzes; the carpets are laid; crystal gas fixtures; mirrors and bookcases built in. It will be furnished complete. It has a private dining-room, and every other accessory appropriate to a first-class modern home. A special waiter will attend this suite, and chambermaid and other servants as required. Price $115 per week; to include rent, heat, water, gas, servants’ attendance, and board for two persons.”
A September 25, 1875, advertisement in the Boston Traveller again announced the availability of the residence with separate entrance on Commonwealth, and added “there are also two or three suites of rooms in the brown stone houses adjoining the hotel, private entrance on Commonwealth avenue, having three rooms on first floor and two in basement, with board at private tables from the hotel.”
In August of 1876, the hotel was sold at auction to satisfy mortgages, unpaid taxes, and other claims. Charles Wood was the successful bidder, with the resulting price sufficient to pay off the mortgages and other liabilities. The August 8, 1876, Boston Globe article on the auction noted that “a good business has been done for several years by Mr. Charles A. Wood, the able landlord, and now that this sale has cut off a couple of hundred thousand dollars in bonds, it will probably be managed with as much profit as it has been socially a success.” He also continued to own the five townhouses and the article noted “there are several brown stone fronts on the avenue which are connected with the hotel.”
Over the next three years, the Boston Five Cents Savings Bank foreclosed on mortgages given by Charles Wood on the five townhouses and took possession of all five. It resold 164 Commonwealth and 166 Commonwealth to Samuel P. Cannell, and retained the other three.
Expanded Hotel Vendome: Charles Whitney ownership. In September of 1879, Charles Wood and his mortgage-holders appear to have reached an agreement with Charles Whitney and Col. John Wesley Wolcott under which Charles Whitney would acquire the Hotel Vendome property and undertake a major expansion, and Col. Wolcott would lease the expanded hotel, operating it as proprietor.
Charles Whitney was a lumber merchant, banker, and real estate investor. He and his wife, Sarah Kimball (Bradley) Whitney, lived across the street at 306 Dartmouth. John Wolcott was a hotel operator who previously had been proprietor of the Brunswick Hotel at the southeast corner of Boylston and Clarendon. He and his wife, Henrietta Louisa Tracy (Eustis) Wolcott, lived in Dedham.
On September 12, 1879, the Boston Journal announced “a New Hotel in Boston.” It reported that the “Hotel Vendome, on the corner of Dartmouth street and Commonwealth avenue, which has for several years been occupied by families, has passed into the hands of Col. J. H. [sic] Wolcott, recently of the Brunswick. The hotel is to be so remodeled that it will when completed present a façade on Commonwealth avenue which will be striking and ornamental. The open space is to be the site of an addition which will rise to the hight [sic] of six stories, with a new entrance on the avenue of excellent proportions. The present entrance will be removed, and the space thrown into a grand parlor. The three houses on the avenue will be connected with the hotel. The hotel will be opened in October for the accommodation of many applicants, who will be but little inconvenienced by the building operations, which will be pushed forward without loss of time.”
On October 30, 1879, Charles Whitney took title to the Hotel Vendome from Charles Wood. At the same time he acquired two of the five brownstone townhouses, 160 and 162 Commonwealth (the two furthest east) and in December of 1879 he acquired the next two, at 164 and 166 Commonwealth.

Hotel Vendome (ca. 1882), looking southeast, probably from 191 Commonwealth; courtesy of the Massachusetts Historical Society, Arthur Asahel Shurcliff Collection of Glass Lantern Slides #6.19.100
The original plans for the addition appear not to have included all five of the townhouses. However, on February 9, 1880, while the addition was under construction, the Boston Journal reported that the “five houses adjoining the present Hotel Vendome, on Commonwealth avenue, are to be removed, and the land which they occupy will be covered by the extension of the present hotel, giving it five times its present capacity. The façade on the avenue will be every way in keeping with the general elegance of the addition which is now being erected.” On March 22, 1880, Charles Whitney acquired 168 Commonwealth, completing his ownership of all five townhouses.
On February 20, 1880 (and other dates), the Boston Globe included an advertisement offering for sale “the Freestone Fronts of five houses adjoining the Hotel Vendome, to make room for the new wing. The steps and fence stone complete to be included in the sale.” William G. Preston, who designed the original hotel building and the five townhouses (but was not commissioned by Charles Whitney to design the expansion) was listed to be contacted connection with the sale, and may have been retained to oversee the detachment of the façades from the houses. It is not known if the façades were sold and reused elsewhere.
The 156 foot wide addition to the hotel was designed by architects Ober and Rand, with a façade of Tuckahoe marble and the principal entrance on Commonwealth.
On August 25, 1880, the Boston Journal reported on the progress in completing the addition. “After an interval of nearly three months, during which work upon its additions has been pushed with all possible energy, the Hotel Vendome reopened its doors last evening for the reception of a large number of those who have come hither to attend the meetings of the Association for the Advancement of Science. During the coming month, Col. Wolcott, its proprietor, will welcome as many guests as the older portion of the structure will accommodate, and in this part of the building the apartments are as orderly and as luxurious as the most fastidious could desire. About the first of October, the south wing of the hotel will be completed and opened, when 150 rooms will be added to those now available, an in December it is expected that the north wing, that fronting on Commonwealth avenue, will be ready for occupancy.”
The addition extended about two feet beyond where the eastern wall of 168 Commonwealth had been located, onto land owned by William T. Hart (who had purchased it from the Commonwealth on April 7, 1874). On June 27, 1883, he sold the 56 foot vacant lot to Sarah Whitney, and on May 6, 1885, she transferred the lot into Charles Whitney’s name.
The bulk of this lot remained vacant. Charles Whitney retained a strip 14 feet wide next to the hotel (with about 6 inches of the hotel’s western wall on it) and sold the next two lots to the west: a 20 foot lot on July 1, 1885, to Annie Maria (Brazer) Bartlett, the wife of Dr. Charles Samuel Bartlett, who built 172 Commonwealth on it, and an irregular lot 22.01 feet wide on Commonwealth and 22.14 feet wide on the alley on January 29, 1886, to William G. Preston, who subsequently sold it to Luther Merrill, who built 174 Commonwealth on it.
In building the addition, Charles Whitney sought both to limit any abutting structures that might encroach on the hotel’s light and air, and also to ensure that neighboring property owners could not challenge whether the hotel addition conformed with the deed restrictions contained in the original land deeds from the Commonwealth.
On November 18, 1883, John Wolcott acquired the vacant land across the alley from the hotel addition, where 157-159-161-163 Newbury later would be built. The purchase probably was made at the behest of Charles Whitney, to whom John Wolcott mortgaged the property. On August 9, 1883, before the land was conveyed to John Wolcott, and again on May 6, 1885, Charles Whitney entered into an agreement with him limiting the height and depth of any buildings built at 157-159-161-163 Newbury and also waiving any right or claim against the owner of the Hotel Vendome arising out of how the hotel was built or maintained.
Similarly, Charles Whitney also included language in the deeds selling the land at 172 Commonwealth and 174 Commonwealth limiting the height and depth of the houses built on those lots and specifying that the owner of the Hotel Vendome reserved the right to maintain the building “as now built.”
The expanded hotel was substantially completed by late 1880 and served both transient guests and permanent residents. Among its first notable guests was actress Sarah Bernhardt, who, the Boston Globe reported on November 24, 1880, took a “suite of eight rooms on the second floor, immediately over the grand entrance, fronting on Commonwealth avenue.”
Moses King, in his The Back Bay District and The Vendome, published when the hotel re-opened after the expansion (and printed by the hotel), indicates that “it was built by Charles Whitney, a wealthy Boston capitalist,” and managed by “Col. J. W. Wolcott, who has done more to raise the standard of hotels in New England than any person now living.”

Hotel Vendome (ca. 1885), looking southeast; detail from photograph by John P. Soule; courtesy of the Boston Athenaeum
The Vendome was outfitted with central steam heat and two passenger elevators. King’s pamphlet describes the interior in detail. “On the first floor are the various public rooms, five dining-rooms, an elegant banquet-hall 30 by 110 feet, and the grand parlors; all reached by the main entrance and by a private entrance on Commonwealth Avenue, so that clubs and parties can be served without interference with the ordinary business of the hotel. There is also an entrance for ladies on Dartmouth Street. The rotunda is most exquisitely finished; and the great dining-hall with seats for 250 persons is richly adorned with mirrors, carved mahogany and cherry wood, and decorated with fresco-work and a handsome frieze. Each of the six upper stories contains seventy rooms, grouped so as to be used singly or in suites…The rooms are all virtually ‘outside rooms,’ and every suite has a bay window.”
In his Houses of Boston’s Back Bay, Bainbridge Bunting notes that “in 1882, the first commercial installation of electric lights in Boston was made at the Hotel Vendome.” These were exterior lights at the entrance to the hotel. On March 29, 1882, the Boston Journal reported that “the electric light invaded Commonwealth avenue on Tuesday night for the first time, Col. Wolcott having placed three lights over the main entrance of the Hotel Vendome. The effect was all that could be expected, and the marble façade lights up to great advantage.”
The interior of the hotel appears to have been lit by gas, inasmuch as, in describing the individual guest rooms, the ninth edition of King’s Boston, published in 1889, notes that “every gas-fixture” … “has its independent ventilating-tubes.”
By the 1881-1882 winter season, Charles and Sarah Kimball (Bradley) Whitney had moved from 306 Dartmouth to the Hotel Vendome. Their unmarried daughter, Kate A. Whitney, lived with them. Their other daughter, Ada Medora (Whitney) Davis, and her husband, George Gilbert Davis, lived at 243 Beacon. George Davis was a manufacturer of woolen machinery and also was associated with Charles Whitney’s banking firm.
In the early morning of September 14, 1883, the original portion of the hotel was damaged by a fire which, as reported in the Boston Globe, started “in a small room in the rear of an elevator well on the third story, used for the storage of heavy drapery, curtains and Turkish rugs” and “rapidly burned its way up the elevator well to and through the roof of the Dartmouth street side, or old portion of the building.” The article noted that “fortunately the flames were contained to the elevator well, the rooms in the immediate vicinity and the roof, but the smoke, which was very dense, permeated every room in the building above the second floor. Had the fire originated in the new part, or that part facing on Commonwealth avenue, it could not have gained such an advantage over the firemen, as that portion of the building has brick walls instead of lath and plaster ones.” On September 17, 1883, the Boston Evening Transcript published a “sketch of some droll incidents at the recent fire in the Vendome.” Click here for a copy of the Transcript’s article.
Charles and Sarah Whitney moved to 336 Beacon for the 1884-1885 winter season. By the 1886-1887 season they were living at the Hotel Oxford (southeast corner of Exeter and Huntington).
Charles Greenleaf Management. John W. Wolcott died in June of 1885 and the hotel subsequently was leased to Charles H. Greenleaf & Co., a partnership of Charles Henry Greenleaf, Amos Barnes, and John W. Dunklee. Amos Barnes and John Dunklee also were the proprietors of the Hotel Victoria at 273 Dartmouth and the Hotel Brunswick (southeast corner of Clarendon and Boylston).
The hotel was closed during the summer of 1886, reopening in mid-September. A September 17, 1886, Boston Globe article commented that “practically the entire house has been refurnished and redecorated, and even the carpets are new from the parlors and corridors upwards,” noting, among the “numerous improvements … the elegant dining-room, with its dark, rich woodwork; the cosy smoking room, with its substantial leather upholstery; the spacious banquet and ebony rooms, and the now famous State suites have all been newly decorated in fashionable tints and effects and freshly carpeted.”
On October 13, 1897, the rear banquet hall of the hotel was badly damaged by a fire which the Boston Globe’s reported “started between the brick ceiling of the boiler room and the floor of the grand dining hall on the ground floor. Owing to the peculiar construction of the floor, the firemen were greatly hampered at getting at the seat of the fire.” According to the Boston Journal’s report, the “blaze …for a time, threatened to spread to other parts of the hotel.”
On June 5, 1901, the Boston Evening Transcript reported that the lease held by C. H. Greenleaf & Co. would expire on July 1, 1901, and that the company had indicated they would not renew the lease unless the building owners made a number of improvements. Agreement subsequently was reached and the improvements were made during the summer of 1901. An October 8, 1901, article in the Transcript described the improvements, including (among other things) “mosaic floors in the office, corridors and dining room, with new electric fixtures and furnishings.” The article noted that “large sums have been expended in the upper floors to make the suites attractive for permanent and transient guests. In every suite a long distance telephone will be established so that one may remain in his room and be in communication with all points reached by telephone.”
Charles Greenleaf served as resident manager of the Hotel Vendome for 38 years. He was a hotel operator from New Hampshire, where he also owned and operated the Profile House hotel and the Flume House hotel at Franconia Notch in the White Mountains. He and his wife, Abbie F. (Burnham) Greenleaf lived at the Hotel Vendome and in Franconia.
Charles Whitney died in September of 1887 and Sarah Whitney died in August of 1889. Their daughters, Ada Medora (Whitney) Davis and Kate Whitney, inherited the property. George and Ada Davis continued to live at 243 Beacon. Kate Whitney usually lived at the Hotel Vendome, but moved to 18 Fairfield for the 1908-1909 winter season, and continued to live there at the time of her death in October of 1909. Her interest in the hotel was inherited by her sister.

Hotel Vendome, July 1921; courtesy of the Library of Congress, Prints and Photographs Division, Detroit Publishing Company Collection
In 1911-1912, a glassed-in sun parlor was built on the front half of the roof at the corner of Dartmouth and Commonwealth. The sun parlor extended from the Dartmouth side to the central tower on Commonwealth.
Abbie Greenleaf died in April of 1914 at the Hotel Vendome and Charles Greenleaf married again in June of 1915 to Mabelle Furst. They lived at the Hotel Vendome and in Franconia.
In June of 1918, the Flume House was destroyed by fire, and in 1921 Charles Greenleaf sold the Profile House and its lands to the Frank H. Abbott and Son Hotel Company, owned by Frank H. Abbott and his son, Karl Pennock Abbott, who had been associate manager of the Profile House since 1920. The Abbotts operated (or later would operate) hotels in New Hampshire, South Carolina, Florida, and New York. The former Greenleaf properties at Franconia Notch were held by the Profile and Flume Hotels Company. The Profile House was destroyed by fire in August of 1923 and, after briefly contemplating rebuilding, the Abbotts sold the land to the state for use as a state park.
Ada (Whitney) Davis died in December of 1920 and the Hotel Vendome continued to be owned by her estate. Charles Greenleaf continued to manage the hotel until his death in April of 1924.
Abbott Family Ownership. On December 6, 1924, the Hotel Vendome was acquired from Ada Davis’s estate by the Profile and Flume Hotels Company, still owned by the Abbott family.
On January 27, 1926, the Hotel Vendome was acquired from Profile and Flume Hotels by The Vendome Company, Inc., also owned by the Abbotts. Frank H. Abbott was president of the company and Karl P. Abbott was vice-president and managing director of the hotel.
In about 1931, Karl Abbott succeeded his father as president of The Vendome Company. He and his wife, Esther L. (Robeson) Abbott, lived in Franconia.
On January 8, 1937, the John Hancock Mutual Life Insurance Company foreclosed on its mortgage to Profile and Flume Hotels, which had assumed by The Vendome Company, and took possession of the property.
Coulon Family Ownership. On May 28, 1943, the Hotel Vendome was acquired from John Hancock Insurance by One-Sixty Commonwealth Ave., Inc., formed by Emile Frederic Coulon. He was a noted Boston hotel operator, who at various times had owned and/or operated the Westminster (southeast corner of St. James and Trinity Place), the Victoria at 273 Dartmouth, the Touraine (southeast corner of Boylston and Tremont), and the Empire at 333 Commonwealth, which he had transformed into the Lafayette in the mid 1930s. He already had been managing the Hotel Vendome for John Hancock Insurance before acquiring the property (the June 4, 1943, Boston Globe article announcing the sale comments that “Mr. Coulon has been operating the hotel for the insurance company for some time”).
On December 30, 1943, One-Sixty Commonwealth Ave., Inc., transferred the Hotel Vendome to Emile F. Coulon, his wife, Anna L. (McCarty) Coulon, and their son, Emile Pierre Coulon, as trustees of the Vendome Trust.
Emile F. Coulon died in April of 1947 in his suite at the Hotel Vendome. Emile P. Coulon continued to operate the hotel until 1954. He died in February of 1955.
Sidney Kleve Ownership. On September 10, 1954, the Hotel Vendome was purchased from Emile P. Coulon by Sidney Arthur Kleve and Milton Loewe, trustees of the Vendome Realty Trust.
Sidney Kleve was a hotel operator who previously had owned the Bedford Hotel in New York City and the Chancellor Hotel in Philadelphia. In November of 1956, he acquired the Balmoral Hotel in Miami. In a November 25, 1956, article on the acquisition, the Boston Globe noted that, since acquiring the Hotel Vendome, he had “extensively redecorated the hotel, making it one of the finest in Boston” and that “Kleve will divide his time between the Vendome and the Balmoral” with the Vendome serving as “the center in the New England area for reservations at the Balmoral.”
Sidney Kleve continued to serve as president of the Hotel Vendome until the early 1970s. Over the period, the hotel ownership changed hands, with Sidney Kleve retaining an interest together with various other investors.
On June 10, 1969, the hotel was damaged by a three-alarm fire on the seventh floor. According to a June 11, 1969, Boston Globe article, that floor of the hotel had not been occupied for several years.
Conversion to Apartments: Franchi Development. On March 16, 1971, the Hotel Vendome was purchased from Sidney Kleve, Murray Bellow, and Joseph S. Wohl, by Richard J. Saletta, trustee of the Franchi Development Trust.
In June of 1971, real estate developer Pasqualle Franchi filed for (and subsequently received) permission to remodel the hotel, converting the hotel rooms on the second through seventh floors into 124 apartments, and creating a shopping mall with various commercial and retail tenants — including a restaurant, lounge, and café with related exterior dining facilities — on the basement and first floors.
On June 17, 1972, while the renovation was underway, the building suffered a massive fire that destroyed the central tower and caused the collapse of the southeastern corner (on Dartmouth at the alley). Nine firefighters were killed fighting the fire. A memorial in the Commonwealth Avenue Mall at Dartmouth commemorates their brave service and sacrifice.
The Franchi Development Trust submitted revised plans, prepared by architects Stahl/Bennett, the variances for which were approved by the Board of Appeal on November 6, 1973. As revised, the southeastern corner was rebuilt and the tower was converted into a penthouse. According to the Board of Appeal decision, the original roofs of the building were 104 feet at the highest point, except for the tower, which was 132 feet. The proposed (and approved) heights were 93 feet 6 inches at the southeast corner, 80 feet at the northeast corner, and a tower of 111 feet 6 inches. The number of apartments was reduced from the prior proposal of 124 to 116.
On January 9, 1975, Franchi Development converted the property into 110 condominiums, 1 superintendent’s apartment, and 27 commercial units on the lower and upper concourse levels (the former basement and first floors).
Photographs of the Hotel Vendome taken by Bainbridge Bunting ca. 1942, provided courtesy of The Gleason Partnership:
- Dartmouth façade
- Commonwealth-Dartmouth corner
- 160 Commonwealth entrance
- 170 Commonwealth entrance
Photographs of the June 17, 1972, fire, courtesy of the Boston Fire History Museum:
- Southwest rear facade before the fire (ca. 1970)
- Southwest rear facade during June 17, 1972, fire
- Collapse of southwest rear facade
Contemporary (2013) photographs of the Hotel Vendome:
- Commonwealth facade
- Commonwealth façade, 1871 portion
- Commonwealth façade, 1880-1881 portion
- Commonwealth and west façades
- Commonwealth-Dartmouth corner
- Dartmouth and Alley 434 façades
- Alley 434 façade
Illustration from The Back Bay District and The Vendome, by Moses King, published by the hotel in 1880 while the expansion was being completed; based on contemporary photographs, it appears that many of the features of the hotel shown in this drawing were built differently.
























