53 Marlborough is located on the NW corner of Marlborough and Berkeley, with 301 Berkeley to the east, across Berkeley, 57 Marlborough to the west, 300 Berkeley to the north, and First Church Boston to the south, across Marlborough.
53 Marlborough was designed by Charles Brigham of Sturgis and Brigham, architects, and built in 1867 by Weston & Shepard, masons, as the home of wine merchant Edward Wainwright Codman and his wife Leslie Prince (Tilden) Codman.
Edward Codman purchased the land for 53 Marlborough on February 28, 1865, from Horace Gray, Jr., an Associate Justice of the Massachusetts Supreme Judicial Court and later Chief Justice of the Massachusetts court and then an Associate Justice of the US Supreme Court. It was part of a larger lot which included the land where 53 Marlborough and 300-302-304 Berkeley would be built. Horace Gray, Jr., had acquired the lot on August 8, 1863, from shipping merchant and real estate investor John Lowell Gardner, whose sister, Sarah Russell (Gardner) Gray, was Horace Gray, Jr.’s step-mother. John L. Gardner had purchased the land from the Commonwealth of Massachusetts on May 2, 1860.
Click here for an index to the deeds for 53 Marlborough, and click here for further information about the land between the north side of Marlborough and Alley 420, from Berkeley to Clarendon.
Charles Brigham’s partner, John Hubbard Sturgis, was living in England and Brigham wrote extensively to him about the projects underway by their firm (his correspondence is summarized by historian David J. Russo). With respect to 53 Marlborough, Brigham wrote that the design was “by all odds the best I have ever contrived,” but noted the limitations created by Edward Codman’s budget, commenting that “I can only wish that he would permit a little more expenditure upon the exterior appearance” (the corner location offered the potential for a less austere design, as Brigham would later achieve at 315 Dartmouth and 314 Commonwealth).
Brigham also oversaw the construction of the house and his correspondence indicates the building’s rapid progress, with the work begun in March of 1867 and finished by the end of the same year. The piles were driven in late March and early April; the “extra thick” foundation was finished in April; the first floor and half of the second floor were completed by early May; the third floor was laid and the roof was almost reached by the end of May; the roof was boarded in, chimneys nearly topped out, and inside room partitions set by early June; the roof was completed by early July; the house was plastered and the cornice completed by late September; the house was papered and carpeted by mid-December; and carpenters were finishing up the last of the house by December 30, 1867.
In January of 1868, Edward and Leslie (Tilden) Codman made 53 Marlborough their home. They previously had lived at 150 Charles. They also maintained a home in Nahant. Their only surviving child, Leslie Wainwright Codman, lived with them.
Edward Codman’s second cousin, Charles Russell Codman, lived next door at 57 Marlborough. His grandfather, John Codman, was the brother of Edward Codman’s grandfather, Stephen Codman. Frances Anne (Codman) Sturgis, the wife of architect John Hubbard Sturgis, (whose firm designed both 53 and 57 Marlborough) was Charles Russell Codman’s sister and, therefore, also Edward Codman’s second cousin.
From early 1878 through the 1879-1880 winter season, Edward and Leslie Codman and their daughter were in Europe.
During the 1879-1880 winter season, 53 Marlborough was the home of iron manufacturer George Parsons King and his wife, Sarah Williams (Lothrop) King. They previously had lived in Roxbury. They moved by the next season, and by the 1881-1882 season were living at the the Hotel Vendome while they awaited completion of their new home at 21 Fairfield.
The Codmans had resumed living at 53 Marlborough by the 1880-1881 winter season.
During the 1886-1887 winter season, they were again traveling in Europe and 53 Marlborough was the home of Francis Inman Amory, an attorney, and his wife, Grace Josephine (Minot) Amory. They had married in May of 1886 and had spent the summer in Lenox. They moved to 116 Beacon by the next season.
Leslie Wainwright Codman died in August of 1901, Leslie (Tilden) Codman died in March of 1903, and Edward Codman died in December of 1904. In his will, Edward Codman left 53 Marlborough to the Massachusetts General Hospital and Harvard College.
On March 21, 1905, 53 Marlborough was sold at public auction. The successful bidder was real estate dealer T. Dennie Boardman, acting on behalf of Gardiner Martin Lane and his wife, Emma Louise (Gildersleeve) Lane.
On March 27, 1905, Emma Louise Lane took tile to the property from Massachusetts General Hospital and Harvard College.
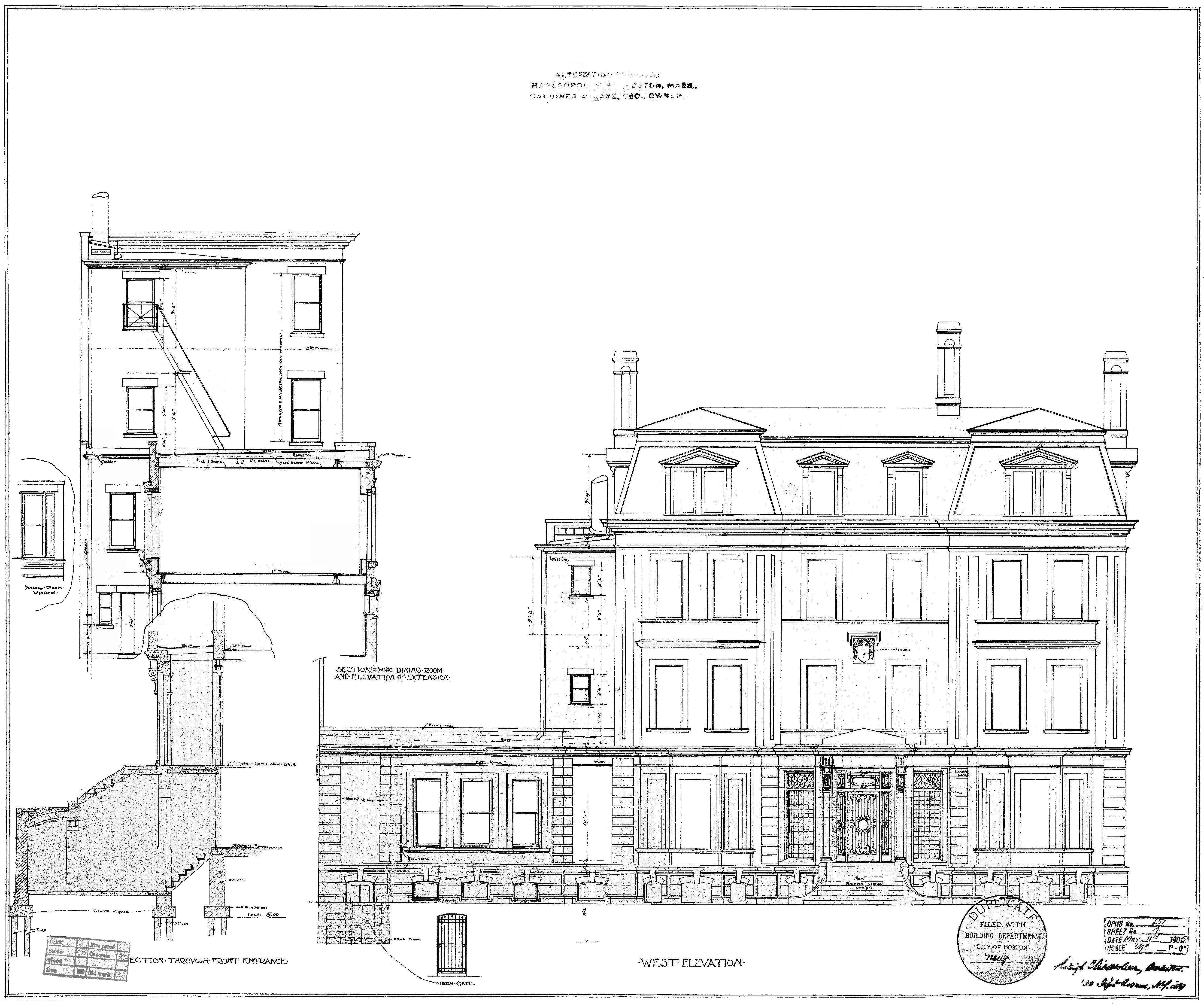
The Lanes significantly remodeled 53 Marlborough, including adding a new wing on their vacant land at the western side of the house. The dining room was moved to the first floor of the new wing, and the kitchen was moved to the basement, with a basement level service entrance on the western side. The remodeling was designed by Emma Lane’s brother, New York architect Raleigh Colson Gildersleeve. A copy of the plans for the remodeling are in the collection of the French Library.

53 Marlborough, front elevation with proposed new wing; plans by Raleigh Gildersleeve (11May1905); courtesy of the French Library
The remodeling was completed by late 1905, and the Lanes made it their home by the 1905-1906 winter season. They previously had lived at 341 Beacon. They also maintained a home, The Chimneys, in West Manchester, Massachusetts, also designed by Raleigh Gildersleeve.
Gardiner Lane was a partner in the investment banking firm of Lee, Higginson & Co. In 1907, he resigned from the firm to become President of the Museum of Fine Arts.
The Lanes daughter, Katharine Ward Lane, lived with them. She would become a noted sculptress.
Gardiner Lane died in October of 1914. Emma and Katharine Lane continued to live at 53 Marlborough. On March 6, 1924, Emma Lane transferred the property into Katharine Lane’s name.
During the 1924-1925 winter season, Emma and Katharine Lane were living in New York City and 53 Marlborough was the home of attorney Pierpont Langley Stackpole and his wife, Laura (McGinley) Knowles Stackpole. Her children by her marriage to Lucius James Knowles — Lucius, Jr., and Sarah Montgomery Knowles — lived with them. They previously had lived at 314 Dartmouth.
The Stackpoles continued to live at 53 Marlborough during the 1926-1927 winter season, but by the next season had moved to 257 Commonwealth and 53 Marlborough was once again the home of Emma and Katharine Lane.
Sometime after the dining room wing was added in 1905 and by the early 1940s, a basement-level entrance was added below the western bay of original house.
A June 25, 1941, Boston Globe “New England Sketchbook” article on the house indicated that, when the house was used for social occasions, “it is not the impressive front entrance that is used. No, a door to the left of it serves the many guests. Furthermore, it is a subterranean passageway, reminding one of old slave days when there was an underground railroad made up of just such tunnels. Less romantic in origin is this one, for it is perhaps because of the house having no back yard that this entrance exists.”

53 Marlborough (ca. 1967), courtesy of the Boston Landmarks Commission and licensed under the Creative Commons Attribution/Non-Commercial license
Katharine Lane married in November of 1947 to Fontaine Carrington Weems, a banker, and moved to New York City.
Emma Lane continued to live at 53 Marlborough until her death in September of 1954.
53 Marlborough remained Katharine (Lane) Weems’s property, and in 1961 she leased it to the French Library in Boston, Inc. It previously had been located at 10 Arlington.
On December 27, 1961, and January 17, 1962 (in two separate transactions), Katharine Weems donated 53 Marlborough to the French Library. In her second deed, she specified that the donation was to be used only for the purposes of the French Library and related French cultural purposes, and could not be be sold or otherwise disposed of unless the Board of Trustees of the French Library determined doing so would be “essential…due to changed circumstances.”
In April of 1972, the French Library also acquired 300 Berkeley next door as an annex to its facilities.
Founded in 1945, the French Library was known for several years as the French Cultural Center before it returned to its original name in 2022.
The French Library continued to be located at 53 Marlborough and 300 Berkeley in 2023.
- 53 Marlborough (2013)
- 53 Marlborough (2013)
- 53 Marlborough (2013)
- 53 Marlborough, Berkeley facade (2013)








