326 Dartmouth is located on the west side of Dartmouth, between Beacon and Marlborough, with 328 Dartmouth to the north and 163 Marlborough to the south.
326 Dartmouth was designed by architects Snell and Gregerson and built in 1871-1872, one of three houses – 163 Marlborough and 326-328 Dartmouth — built at the same time, creating a symmetrical composition on Dartmouth.
In his Houses of Boston’s Back Bay, Bainbridge Bunting comments that the houses are “three closely related structures” that “fit together to create an impressive whole.” 326 Dartmouth forms the center house of the three, half a story lower than the houses on either side and differentiated by changes in floor level and stone trim.
The three houses were built on a parcel with a 100 foot frontage on Marlborough and a 112 foot frontage on Dartmouth. The parcel was assembled by building contractor George Wheatland, Jr., who purchased the eastern portion at the corner of Dartmouth, with a 30 foot frontage on Marlborough, from the Commonwealth of Massachusetts on November 29, 1870, and the western portion, with a 70 foot frontage on Marlborough, from Eben D. Jordan on December 3, 1870 (it was part of a 100 foot wide lot that Eben Jordan had purchased from William Thomas on March 9, 1870; William Thomas had purchased it from the Commonwealth on November 2, 1869).
On December 3, 1870, George Wheatland, Jr., sold Thomas Forbes Cushing the southern portion of the parcel, with a 100 foot frontage on Marlborough and a 57 foot frontage on Dartmouth. He retained the northern portion. Thomas Cushing had 163 Marlborough built on his lot, and George Wheatland, Jr., had 326-328 Dartmouth built on his, for speculative sale.

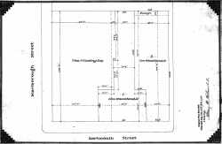
Plot plan of 163 Marlborough and 326-328 Dartmouth, filed with mortgage of 326 Dartmouth; Suffolk Co. Deed Registry, Book 1087, p. 270 (16Jun1872)
The houses were built with an irregular east-west line. As a result, the eastern (Dartmouth) façade of 163 Marlborough is 22 feet wide (on a 44 foot lot frontage) and the western wall is 39 feet wide (on a 61 foot lot frontage); the eastern façade of 326 Dartmouth is 46 feet and the western wall is 18 feet, and the eastern façade of 328 Dartmouth is 22 feet and the western wall is 33 feet. The lot bought by Thomas Cushing did not match the footprint of the house he had built at 163 Marlborough, and on December 29, 1871, and January 16, 1872, he and George Wheatland, Jr., exchanged parcels of land to reflect the irregular shape. The deed from George Wheatland, Jr. – and subsequent deeds conveying 326 Dartmouth and 328 Dartmouth — also included a 4 foot wide easement over the rear of 328 Dartmouth to provide access to the alley for 326 Dartmouth.
Click here for an index to the deeds for 326 Dartmouth, and click here for further information about the land between the north side of Marlborough and Alley 418, from Dartmouth to Exeter.
326-328 Dartmouth were built by Standish & Woodbury, masons and builders. In early August of 1871, they filed a Notice of Intention to Build for the two houses on behalf of George Wheatland, Jr. (reported in the Boston Evening Transcript on August 8, 1871). Construction probably started soon thereafter.
On October 1, 1874, George Wheatland, Jr., offered 326-328 Dartmouth for sale at public auction. A September 22, 1874, Boston Traveller advertisement by Samuel Hatch & Co., the auctioneer, described 326 Dartmouth as “an elegant, high finished house” with “a good cellar under the house, a laundry and kitchen, a man’s room. On the main entrance floor is a spacious high stud hall, drawing room, dining room, china closet and toilet room; 2d floor, 2 large chambers with dressing rooms, a large boudoir room.” The advertisement also noted that the house had “the best of plumbing and all the modern fixtures, front and back stairs, and statuary, marble and carved wood mantles.”
The successful bidder for the house probably was dry goods merchant William Mathias Bremer, who took title to the property from George Wheatland, Jr., on On October 19, 1874. He and his wife, Welthea Loring (Malbon) Bremer, made it their home. They previously had lived at 127 Boylston.
The Bremers continued to live at 326 Dartmouth during the 1876-1877 winter season, but had moved to Hingham by 1878. He continued to own the house and lease it to others.
By the 1877-1878 winter season, 326 Dartmouth was the home of Mary Elizabeth Wright, the former wife of Charles Henry Todd. She previously had lived at 321 Dartmouth . Her unmarried son, Charles Francis (Todd) Wright, lived with her (Mary Wright was divorced from Charles H. Todd and, in 1867, she and their children took her maiden name, Wright, as their surname).
In April of 1884, Mary Wright purchased the stable at 336 Newbury. The Wright family continued to own it until 1915.
She continued to live at 326 Dartmouth until her death in July of 1900. Prior to her death, she and her son had been joined at 326 Dartmouth by her unmarried sister, Esther Fidelia Wright.
Charles Wright and his aunt Esther continued to live at 326 Dartmouth. He listed his occupation as “gentleman of leisure” in the 1880 US Census, and showed no employment in the 1900 US Census.
Esther Wright died in January of 1903.
Charles Wright continued to live at 326 Dartmouth and on May 14, 1904, he purchased the house from the estate of William Bremer (who had died in February of 1885).
Charles Wright died in December of 1909. In his will, he left 326 Dartmouth to his brother, William James Wright, and by the 1910-1911 winter season, he and his wife, Georgianna (Buckham) Wright Wright, had made it their Boston home. They also maintained a home in Duxbury, where Georgianna Wright had donated the funds to build the public library (now known as the Wright Memorial Library).
William Wright was a gentleman farmer and had served in the Massachusetts legislature in 1890 and 1891. He married Georgianna (Buckham) Wright in January of 1900. She was the widow of his uncle, George Wellman Wright (who died in 1897).
William Wright died in December of 1912. Georgianna Wright continued to live at 326 Dartmouth until her death in 1919.
On October 27, 1919, 326 Dartmouth was purchased from Georgianna Wright’s estate by Dr. William Edwards Ladd. He and his wife, Helen Katharine (Barton) Ladd, made it their home. They previously had lived at 346 Beacon. They also maintained a home in Nahant.
William Ladd was a physician and pediatric surgeon. He devised a number of new surgical procedures, and is known as the “father of pediatric surgery.”
In May of 1924, Dr. Ladd and Dr. Richard M. Smith purchased 66 Commonwealth, which they converted to medical offices for themselves and other doctors.
The Ladds continued to live at 326 Dartmouth until about 1927, when they moved to Milton.
On December 31, 1926, 326 Dartmouth was purchased from William Ladd by Margaret (Margot) Putnam (Cushing) Rueter, the wife of William Glover Rueter. They previously had lived at 10 Fairfield. They also maintained a home in Manchester, Massachusetts.
William Rueter previously had been a brewer in his family’s firm until the 1920s. By 1930 was treasurer of Kennedy & Company, dealers in butter, cheese, and eggs, he also was treasurer the La Touraine Coffee Company.
By the 1934-1935 winter season, the Rueters had been joined at 326 Dartmouth by his mother, Bertha Emeline (Glover) Rueter, the widow of Henry Arnold Rueter. She had spent the previous season in Louisville with her son-in-law and daughter, John Gilpin Heyburn and Martha von Eiken (Rueter) Heyburn. She previously had lived at the Hotel Beaconsfield in Brookline and, before that, in the mid-1920s, at 284 Beacon, where William and Margot Rueter had lived with her. She continued to live at 326 Dartmouth until the late 1930s, but moved by 1940 and was living with the Heyburns in Louisville at the time of her death in September of 1943.
William and Margot Rueter continued to live at 326 Dartmouth in 1941. By 1942, they had made 388 Spring Street in Manchester their home, and 326 Dartmouth was vacant.
On December 22, 1941, 326 Dartmouth was purchased from Margot Rueter by Julia (Giulia) (Leverone) Arata, the widow of Paul (Paolo) Arata. She lived in Brighton with her son and daughter-in-law, Fred L. Arata and Annette Flossie (Crovo) Boggiano Arata. Fred Arata was a retail liquor dealer and real estate investor.
By 1943, 326 Dartmouth was the home of Nell K. Mercier, manager of the Hotel Brunswick at 520 Boylston, where she previously had lived. Born Nell Fidelia Mercier in Virginia, she was the former wife of Clifton Nicholson Phillips. After moving to 326 Dartmouth she also operated it as a lodging house. She married again in January of 1947 to Herbert Camp Sneath, Boston district manager for American Express. After their marriage, they lived at the Hotel Brunswick.
In July of 1947, Fred Arata applied for (and subsequently received) permission to remodel the property from a single-family dwelling into three medical offices and six apartments.
Julia Arata died in April of 1952, and on November 23, 1953, Fred Arata, as administrator of her estate, transferred the property into his name, and on April 5, 1954, he transferred the property into his and his wife’s names.
On January 3, 1956, 326 Dartmouth was acquired from Fred and Annette Arata by Beatrice (Miller) Silversmith, the wife of Peter Philip Silversmith, a lawyer and real estate dealer. They lived in an apartment at 62 Commonwealth until about 1958, when they moved to Palm Beach, Florida. By 1959, they also kept an apartment at 326 Dartmouth as their Boston home and he maintained an office at 261 Commonwealth.
On July 19, 1960, Beatrice Silversmith transferred 326 Dartmouth to her husband as trustee of the Silversmith Trust.
On May 8, 1961, 326 Dartmouth was acquired from Beatrice Silversmith by William S. Zeghibe and his wife, Rose Zeghibe. At the time they purchased it, the property was composed of nine dwelling units and one office (occupied by the Spanish Consulate), and in August of 1963 they applied for (and subsequently received) permission to legalize the occupancy as such.
The property subsequently changed hands, including being sold in foreclosure in 1975.
On January 15, 1979, 326 Dartmouth was purchased by the Rhedom Realty Corporation of Providence (Rhea Patriarca, president and treasurer).
On November 12, 1980, it converted the property into eleven condominium units, the 326 Dartmouth Street Condominium.
On November 19, 1980, Rhedom Realty applied for (and subsequently received) permission to change the occupancy to eight units, reflecting purchases of several units made after the condominium master deed had been filed.




