32 Hereford is located on the NE corner of Commonwealth and Hereford, with 362 Marlborough to the north, across Alley 428, 40 Hereford to the south, across Commonwealth, 305 Commonwealth to the east, and 311 Commonwealth to the west, across Hereford.
32 Hereford was designed by McKim, Mead, & White, architects, and built in 1884-1885 by Norcross Brothers, builders.
Bainbridge Bunting, in his Houses of Boston’s Back Bay, comments that “although it contains such Queen Anne features as the clustered chimney and corner tower, the design is one of the first indications in America of the approaching revival of the Renaissance style.” Samuel G. White’s The Houses of McKim, Mead & White includes numerous floor plans and photographs of the house. White notes that “the twin bays on Hereford Street bracket a ducal porch, which is supported by columns of St. Laurent marble and topped by a majestic Palladian window. A band of endless knots separates the lightly rusticated stone base from the smooth upper walls of umber speckled brick. Double-hung sashes with single panes, iron balconies from the Palace of the Tuileries, and limestone balustrades and stringcourses all cleave to the undulating plane of the street wall, which is punctuated in stately rhythms by punched openings and classical surrounds.”
A November 29, 1885, Boston Herald article on the house, then under construction, commented that it was “attracting much attention from the peculiarities of the construction, the materials used and the proposed cost and beauty of its finish. The walls spring from a foundation of bluestone, a light colored Ohio freestone being used for the lower sections and trimmings, while the main structure is of brick, of the kind now for the first time used in Boston for building purposes, known as the Perth Amboy Terra Cotta Company’s, or ‘speckled brick,’ light in color and of unusual shape, each brick being one foot long, four inches wide, and one and a half inches thick.”
32 Hereford was built as the home of John Forrester Andrew and his wife, Harriet Bayard (Thayer) Andrew. He is shown as the owner on the original building permit application, dated July 16, 1884, and on the final building inspection report, dated December 2, 1886, in both cases shown as 309 Commonwealth.
Click here for an index to the deeds for 32 Hereford, and click here for further information about the land between the north side of Commonwealth and Alley 428, from Gloucester to Hereford.
Harriet Thayer’s mother, Cornelia (van Rensselaer) Thayer, widow of Nathaniel Thayer, lived next door at 305 Commonwealth, built at about the same time.

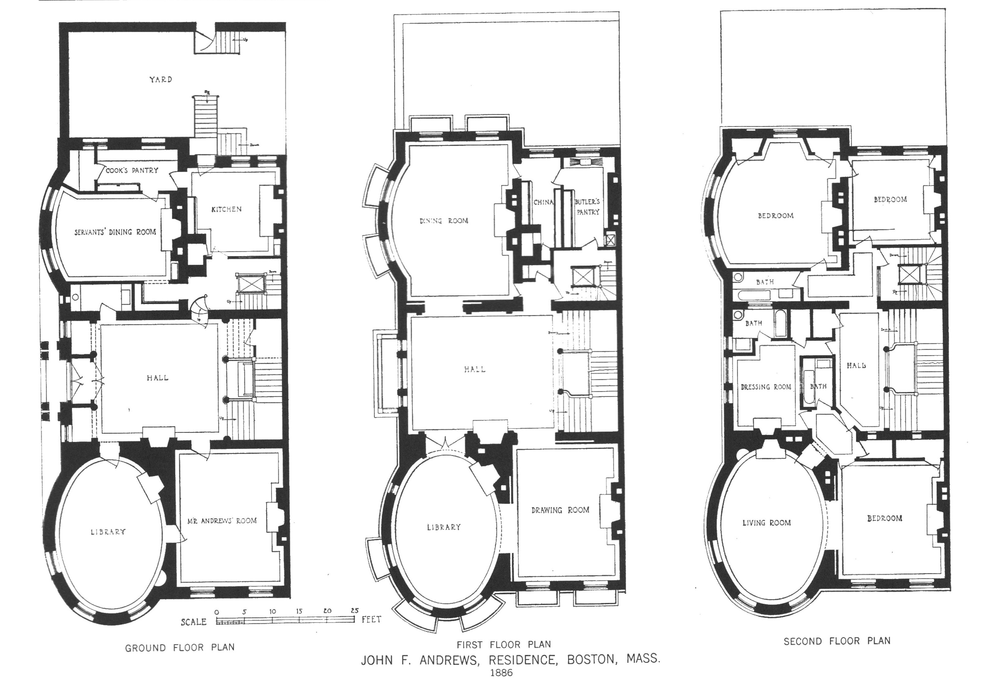
Floor plans for the ground, first, and second floors of 32 Hereford, ca. 1886; from A Monograph of the Works of McKim, Mead & White: 1879-1915 (The Architectural Book Publishing Company, New York); Plate 17
32 Hereford and 305 Commonwealth were built on land purchased by the Thayer family in 1883, prior to (and probably in anticipation of) Harriet Thayer’s marriage to John Andrew. The bulk of the lot, with a frontage of 71 feet on Commonwealth, was acquired on April 2, 1883, by Harriet Thayer’s brothers, Nathaniel Thayer, Jr., and Eugene Van Rensselaer Thayer. They transferred it to Harriet, who augmented it with the purchase of an additional six foot wide lot on July 23, 1883. All of the land had been part of a larger parcel owned by building contractor George Wheatland, Jr., and originally had been part of one of several tracts of land purchased on March 1, 1872, from the Boston Water Power Company by a real estate investment trust formed by Grenville Temple Winthrop Braman, Henry Dwight Hyde, and Frank William Andrews.
Harriet Thayer and John Andrew married in October of 1883. After their marriage, Harriet Andrew divided the property into two lots, retaining the corner lot for their new home at 32 Hereford and creating a new lot to the east where 305 Commonwealth would be built for her mother. She transferred the lot for 305 Commonwealth to herself and her four surviving brothers: Nathaniel Thayer, Jr., Eugene V. R. Thayer, Bayard Thayer, and John Eliot Thayer (her eldest brother, Stephen van Rensselaer Thayer, had died in October of 1871; her sister, Cornelia Van Rensselaer Thayer, had married in November of 1868 to New York banker James Hampden Robb).

32 Hereford, drawing from the Inland Architect (Feb1889); Inland Architect Collection, Ryerson and Burnham Libraries, The Art Institute of Chicago (Digital file #IA1301_0285-0286).
John Forrester Andrew was a lawyer. He served in the Massachusetts House of Representatives from 1880 to 1884, and in the State Senate in 1885. In 1886, he ran for Governor but was defeated by Oliver Ames, the Lt. Governor, of 355 Commonwealth. In 1888, John F. Andrew was elected to Congress. He was reelected in 1890 but defeated in 1892. His father, John Albion Andrew, had been Governor of Massachusetts during the Civil War.
By the 1886-1887 winter season, John and Harriet (Thayer) Andrew had made 32 Hereford their home. They had lived at 215 Commonwealth during the 1885-1886 winter season while awaiting completion of 32 Hereford. They also maintained a home in Hingham.
In 1888, John Andrews built a stable at 339 Newbury.
Harriet Andrew died in September of 1891. John Andrew continued to live at 32 Hereford until his death in May of 1895.
At the time of his death, his daughters — Cornelia and Elizabeth — were still children. They were under the guardianship of their maternal uncle, Nathaniel Thayer, Jr., and raised by their paternal aunt, Edith Andrew, with whom they lived at 408 Beacon during the winter and in Hingham during the summer.
Nathaniel Thayer, Jr., sold the stable at 339 Newbury in November of 1895.
32 Hereford was not listed in the 1896 and 1897 Blue Books.
By the early 1897, 32 Hereford had become the home of Harriet (Thayer) Andrew’s brother, Bayard Thayer, a banker and noted yachtsman, and his wife, Ruth (Simpkins) Thayer. They had been married in September of 1896. They also maintained a home in Lancaster and owned a stable at 342 Newbury. At the time of their marriage, Bayard Thayer lived at 305 Commonwealth with his widowed mother, Cornelia (van Rensselaer) Thayer, and Ruth Simpkins lived with her brother, Congressman John Simpkins, at his country home, Sandyside, in Yarmouthport.
They continued to live at 32 Hereford until the 1902-1903 winter season, when they moved to 183 Marlborough and 32 Hereford once again became the home of Cornelia and Elizabeth Andrew. Their aunt, Edith Andrew, lived with them.
Cornelia Andrew married in April of 1904 to John Dudley Clark, a stockbroker and banker, and they moved temporarily to 408 Beacon. Prior to their marriage, he had lived at 84 Commonwealth with his mother, Loula (Henslee) Clark Engelmann, the widow of Benjamin Oliver Clark and of Dr. George Julius Engelmann.
Elizabeth Andrew continued to live at 32 Hereford with Edith Andrew.
In July of 1905, Elizabeth Andrew married Charles Ellis Mason of 347 Commonwealth. He was associated with his family’s paper manufacturing firm, S. D. Warren & Co. After their marriage, they lived in Hingham and by the 1906-1907 winter season at 8 Gloucester. Dudley and Cornelia Clark moved back to 32 Hereford, and Edith Andrew moved to the Hotel Victoria at 273 Dartmouth and continued to maintain a home in Hingham.
On January 13, 1906, Cornelia Clark purchased Elizabeth Mason’s interest in 32 Hereford (they had each inherited a half-interest from their mother). After acquiring the house, the Clarks had the interior remodeled by the firm of Little and Browne. They also maintained a home in Sherborn.
In February of 1906, Cornelia Clark purchased the stable at 335 Newbury. She continued to own it until 1916.
During the 1918-1919 winter season, the Clarks were living at The Chesterfield at 371 Commonwealth, where Cornelia Clark died in December of 1918.
John Clark and their children resumed living at 32 Hereford. By 1920, they were joined by his mother, Loula (Henslee) Clark Engelmann. In 1910, she had lived at 84 Commonwealth.
John Dudley Clark and Loula Engelmann continued to live at 32 Hereford and in Sherborn until about 1950.
On July 13, 1950, the Beta Foundation purchased 32 Hereford from John Dudley Clark, as executor under Cornelia (Andrew) Clark’s will. That same month, it filed for (and subsequently received) permission to convert the property from a single-family dwelling into a “technology club” — the fraternity house of the Beta Chapter (MIT) of Chi Phi fraternity. It previously had been located at 22 The Fenway.
32 Hereford remained the Chi Phi fraternity house in 2021
- 32 Hereford (2013)
- 32 Hereford, Commonwealth façade (2013)
- 32 Hereford (2013)
- 32 Hereford, Alley 428 façade (2013)








