404 Beacon (2 Gloucester) is located on the NW corner of Beacon and Gloucester, with 400 Beacon to the east, across Gloucester, 406 Beacon to the west, and 401 Beacon to the south, across Beacon.
2 Gloucester (later 404 Beacon) was designed by William Y. Peters, architect, and built in 1893-1894 by W. A. and H. A. Root, masons, for William Caleb Loring and his wife, Susan Mason (Lawrence) Loring. The entrance originally was at 2 Gloucester, which remained its address until 1953, when the entrance was moved to Beacon Street and it became 404 Beacon. William Caleb Loring is shown as the owner on the original building permit application, dated July 7, 1893.
2 Gloucester was built on land purchased by Susan Loring on April 13, 1892, from textile manufacturer Harcourt Amory, who had purchased the land on April 20, 1881, from the Boston and Roxbury Mill Corporation.
Click here for an index to the deeds for 404 Beacon (2 Gloucester), and click here for further information on the land on the north side of Beacon, including the Storrow Memorial Embankment on the Esplanade.
The Boston and Roxbury Mill Corporation retained the land east of 2 Gloucester between Beacon and Back Streets, as a privately owned extension of Gloucester, 40 feet in width. On October 11, 1894, it sold the western half of this private way to Susan Loring. The eastern half remained the property of the corporation. In May of 1895, the City of Boston designated the extension of Gloucester between Beacon and Back Streets as a public street. This appears to have called into question the Lorings’ ownership of the western half of the street and, on May 29, 1901, the Boston and Roxbury Mill Corporation recorded a deed confirming Susan Loring’s ownership of it. It remained the property of subsequent owners of 2 Gloucester (404 Beacon). In May of 1981, the City deteremined that the extension of Gloucester between Beacon and Back Streets was no longer needed for public purposes, and the eastern half was sold to the owner of 400 Beacon.
By the 1894-1895 winter season, William and Susan Loring had made 2 Gloucester their home. They previously had lived 20 Hereford. They also maintained a home in Prides Crossing.
William Caleb Loring was an attorney. In 1899, he was appointed an associate justice of the Massachusetts Supreme Judicial Court, in which position he served until September of 1919.
In March of 1901, he purchased the stable at 329 Newbury. It remained in the Loring family until 1923.
In March of 1903, John Singer Sargent painted William Caleb Loring’s portrait at 2 Gloucester. In her memoirs, To Be Young Was Very Heaven, his wife’s niece, Marian Lawrence (daughter of Bishop William Lawrence of 122 Commonwealth), describes in some detail watching Sargent as he worked on the painting of “Uncle Caleb” in the Lorings’ home, including a visit from sculptor Augustus Saint-Gaudens, whom Sargent had invited to (in Marian Lawrence’s words) “come and criticize the picture”

2 Gloucester (404 Beacon) (ca. 1942), photograph by Bainbridge Bunting, courtesy of the Boston Athenaeum
On February 11, 1919, Susan Loring purchased 403 Beacon across the street from their home at 2 Gloucester. Three days later, she sold 403 Beacon to her niece, Harriet Cutler (Cunningham) Binney, the wife of Dr. Horace Binney (Susan Loring’s sister, Hetty Sullivan (Lawrence) Cunningham, the wife of Frederic Cunningham, Jr., was Harriet (Cunningham) Cutler’s mother).
The Lorings acquired 403 Beacon for the purpose of adding a deed restriction prohibiting any owner of 403 Beacon from increasing the height of the building and from allowing openings in the party walls between 403 Beacon and the buildings on either side if those buildings exceeded the height of the building at 403 Beacon. The restriction was “imposed for the benefit of the estate of said Susan M. Loring on the corner of Beacon and Gloucester Streets” and was to remain in effect until January 1, 1950.
During the 1919-1920 winter season the Lorings were living elsewhere and 2 Gloucester was the home of real estate investor Edward Deshon Brandegee and his wife, Mary Bryant (Pratt) Sprague Brandegee. They had lived at 6 Commonwealth during the previous season. Their primary residence was their home, Faulkner Farm, in Brookline. In May of 1924, they purchased 23 Commonwealth as their Boston home.
The Lorings were once again living at 2 Gloucester during the 1920-1921 winter season.
Susan Loring died in March of 1923. William Caleb Loring continued to live at 2 Gloucester until his death in September of 1930.
On January 16, 1931, 2 Gloucester was acquired from Susan Loring’s estate by William Caleb Loring’s nephew, Augustus Peabody Loring, Jr., and his wife, Rosamond (Bowditch) Loring. They previously had lived at 81 Marlborough. They were first listed at 2 Gloucester in the 1932 Blue Book, in which they also were listed at 81 Marlborough with the notation that they would be at 2 Gloucester for the winter. They also maintained a home in Prides Crossing.
Augustus Loring was a real estate trustee.
On August 21, 1936, he removed the restrictions on 403 Beacon imposed by Susan Loring’s 1919 deed.
Bainbridge Bunting’s Houses of Boston’s Back Bay includes several photographs of the interior of 2 Gloucester as it appeared in the early 1940s. when it was the Lorings’ home.
Rosamond Loring died in September of 1950, and Augustus Loring, Jr., died in October of 1951.

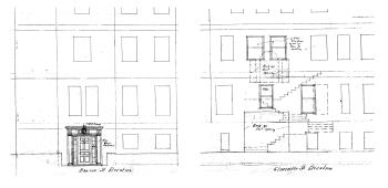
Detail from elevations for remodeling of 2 Gloucester (404 Beacon), showing proposed new entrance on Beacon and removal of entrance and Palladian widow on Gloucester, by Thomas Byrd Epps; Boston City Archives, City of Boston Blueprints Collection
On July 3, 1952, 2 Gloucester was purchased from the estate and heirs of Augustus Loring, Jr., by Dr. George Joseph Colantino, a physician, and his wife, Edith E. (Fitzgerald) Knight Colantino. They previously had lived (and he had maintained his medical office) at 300 Commonwealth.
In April of 1953, he applied for (and subsequently received) permission to convert 2 Gloucester from a single-family dwelling into five apartments. In October of 1953, he amended the application to convert the property into five apartments and a doctor’s office. As part of the remodeling, an additional story was added, a new entrance was constructed on Beacon Street, and the original entrance and Palladian window on Gloucester Street were eliminated. From that point, the address was 404 Beacon.
The remodeling was designed by architect Thomas Byrd Epps. Partial plans, showing the remodeled elevations, are included in the City of Boston Blueprints Collection in the Boston City Archives (reference BIN R-145).
The Colantinos lived at 404 Beacon in one of the apartments and he maintained his medical office in the building. They also maintained a home in Andover.
Edith Colantino died in December of 1964. George Colantino married again in August of 1968 to Ann (Andrea) (Federici) Crooks. They lived at 404 Beaocn in 1969 but moved thereafter and were residents of Winchester at the time of his death in September of 1973.
On August 9. 1972, 404 Beacon was acquired from George Colantino by Stephen W. Wolfe.
On December 16, 1976, he converted the property into six condominium units, the 404 Beacon Street Condominium.


